ME4 6PH - 2 bed modern two bedroom terrace in Armada Way, ME4 6PH

View on Property Piper

2 bedroom terraced house for sale in Armada Way, Chatham, ME4

Summary - 36 ARMADA WAY CHATHAM ME4 6PH

2 bed 1 bath Terraced

Refurbished cul-de-sac home with parking and sunny garden, ideal for first-time buyers.
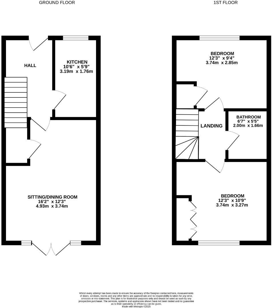
Two bedrooms, one bathroom; approximately 657 sq ft
This modern two-bedroom mid-terrace offers a fresh, move-in-ready home in a quiet Armada Way cul-de-sac. The current owner’s recent refurbishment has updated the kitchen, windows and interior finishes, creating a bright living room with patio doors to a sunny south-facing garden.

Practical daily living is well supported: off-street parking, gas central heating with a recent boiler, double glazing, and fast broadband. The property’s location is convenient for commuters, a short walk to Chatham station, the town centre and strong local schools including an outstanding grammar school.

Buyers should note the house is compact (approximately 657 sq ft) with one bathroom and a small rear garden — ideal for first-time buyers or those downsizing rather than families requiring lots of space. The immediate area has higher crime levels and elevated deprivation indices; this is factual context that may affect resale or rental perceptions.

Overall this freehold mid-terrace is a neatly finished urban home with low flood risk and good transport links. It suits buyers seeking a modern, low-maintenance starter property close to schools and rail connections, while accepting the local socio-economic challenges and modest plot size.

Property Details

Brochure Descriptions

Image Descriptions

Floorplan Description

Rooms

Textual Property Features

Target Audience

AI Tags

Detected Visual Features

EPC Details

Nearby Schools

Nearest Bars And Restaurants

,,,,}

Nearest General Shops

,,}

Nearest Grocery shops

,,}

Nearest Supermarkets

,,}

Nearest Religious buildings

,,}

Nearest Medical buildings

,,,}

Nearest Airports

,}

Nearest Leisure Facilities

,,,,}

Nearest Tourist attractions

,,}

Nearest Train stations

,,,,}

Nearest Bus stations and stops

,,,,}

Nearest Hotels

,,}

Tags

Local Market Stats

AirBnB Data

Similar Properties

Meta

High Res Images

Compatible Images

Low res Images

Thumbnails

Raw Images

High Res Floorplan Images

Compatible Floorplan Images

Low res Floorplan Images

FloorplanImages Thumbnail

Raw Floorplan Images