Chain-free, cash-friendly apartment with parking and rental potential.
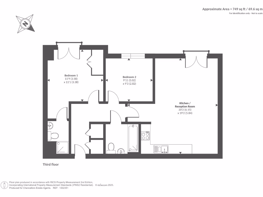
Chain-free first-floor two-bedroom apartment
Allocated off-street parking space included
Open-plan reception; suitable for renting or first move
79 years remaining on lease — mortgage risk for buyers
Very high ground rent £3,200 pa — significant ongoing cost
Electric room heaters; no gas central heating
Service charge £160 pa; council tax described as affordable
Located in higher-crime, deprived area — affects resale/letting
A modern two-bedroom first-floor apartment with allocated off-street parking, offered chain-free. The open-plan reception and compact kitchen suit a straightforward rental or starter-home layout. Communal grounds provide outdoor space without maintenance responsibility.
There are important lease and cost issues to note: the listing states 79 years remaining on the lease, which will make obtaining a mortgage difficult for many buyers, and the annual ground rent is very high at £3,200. Heating is by electric room heaters rather than a gas central system, so running costs can be higher than conventional central heating.
This apartment will appeal most to cash buyers and investors able to take on refurbishment or to negotiate lease-extension costs. The service charge is relatively low at £160, and council tax is described as affordable, but the property sits in an area with higher crime and local deprivation, factors to weigh for long-term lettability and resale value.
2 bedroom flat for sale in Sevenoaks Close, SUTTON, Surrey, SM2 — £290,000 • 2 bed • 2 bath • 595 ft²
1 bedroom flat for sale in East Street, Jukes House, KT17 — £200,000 • 1 bed • 1 bath • 345 ft²
2 bedroom apartment for sale in Saxon Close, Surbiton, KT6 — £337,500 • 2 bed • 1 bath • 583 ft²
2 bedroom flat for sale in Foxglove Way, Wallington, SM6 — £275,000 • 2 bed • 1 bath • 538 ft²
1 bedroom apartment for sale in Charlotte Road, Wallington, SM6 — £225,000 • 1 bed • 1 bath • 479 ft²
2 bedroom flat for sale in Throwley Way, Sutton, SM1 — £350,000 • 2 bed • 2 bath • 634 ft²










































































