**Standout Features:**
- Modern 2-bedroom lodge in a scenic golf resort
- Spacious living areas with lake views
- Fantastic sunken hot tub on a raised deck
- Move-in ready condition, ideal for a holiday home
- Off-street parking and a garden area
- Close proximity to York and Pocklington
- Onsite amenities, including a 9-hole golf course
**Summary Description:**
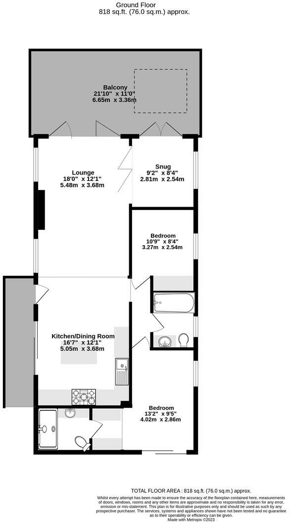
This superb two-bedroom lodge offers a perfect blend of modern comfort and picturesque surroundings, ideal for families or investors seeking a holiday retreat. Set within the prestigious 5-star Allerthorpe Golf & Park Resort, this spacious home boasts breathtaking views of the lake and features a fantastic sunken hot tub, perfect for relaxation. Spanning approximately 818 sq. ft., the open-plan living space includes a large lounge and a contemporary kitchen with sleek stainless steel appliances, ensuring a delightful living experience.
The lodge is designed with practicality in mind, offering a cozy snug, a master bedroom complete with an en-suite and dressing area, a well-sized second bedroom, and a stylish bathroom. Outside, enjoy the landscaped garden and convenient off-street parking. While the property is in move-in condition, the annual service charge of £6,600 may be a consideration. Its strategic location allows for easy exploration of the historic City of York and the Yorkshire Wolds, making it an exceptional find. Don’t miss out on this inviting lodge that perfectly combines comfort, leisure, and a connection to nature!
 2 bedroom mobile home for sale in Melbourne Road, Allerthorpe, YO42 — £90,000 • 2 bed • 2 bath • 554 ft²
 2 bedroom mobile home for sale in Melbourne Road, Allerthorpe, YO42 — £90,000 • 2 bed • 2 bath • 554 ft² 2 bedroom lodge for sale in Port Rush, Allerthorpe, YO42 — £55,000 • 2 bed • 1 bath • 1725 ft²
 2 bedroom lodge for sale in Port Rush, Allerthorpe, YO42 — £55,000 • 2 bed • 1 bath • 1725 ft² 2 bedroom park home for sale in Allerthorpe Golf & Country Park, Allerthorpe, York, YO42 — £80,000 • 2 bed • 1 bath • 552 ft²
 2 bedroom park home for sale in Allerthorpe Golf & Country Park, Allerthorpe, York, YO42 — £80,000 • 2 bed • 1 bath • 552 ft² 2 bedroom lodge for sale in Allerthorpe Golf and Country Park, Allerthorpe, York, YO42 4RL, YO42 — £179,500 • 2 bed • 1 bath
 2 bedroom lodge for sale in Allerthorpe Golf and Country Park, Allerthorpe, York, YO42 4RL, YO42 — £179,500 • 2 bed • 1 bath 2 bedroom park home for sale in Allerthorpe Golf & Country Park, Allerthorpe, York, YO42 — £90,000 • 2 bed • 2 bath • 590 ft²
 2 bedroom park home for sale in Allerthorpe Golf & Country Park, Allerthorpe, York, YO42 — £90,000 • 2 bed • 2 bath • 590 ft² 2 bedroom park home for sale in Allerthorpe Golf and Country Park, Allerthorpe, York, YO42 — £135,000 • 2 bed • 1 bath • 745 ft²
 2 bedroom park home for sale in Allerthorpe Golf and Country Park, Allerthorpe, York, YO42 — £135,000 • 2 bed • 1 bath • 745 ft²






















































