SA4 9AT - 4 bedroom semidetached house for sale in Bryn Rhos Crescent…

View on Property Piper

4 bedroom semi-detached house for sale in Bryn Rhos Crescent, Penllergaer, SA4 9AT, SA4

Summary - Bryn Rhos Crescent, Penllergaer, SA4 9AT SA4 9AT

4 bed 1 bath Semi-Detached

New-build four-bedroom home with garden, garage and NHBC cover.
Four bedrooms across three floors, master with en suite and storage
Set over three floors, The Whitecroft at Parc Mawr is a brand-new, chain-free four-bedroom semi-detached home finished to a modern specification. The ground floor offers a front living room and a rear open-plan kitchen/dining area with fitted units, integrated fridge/freezer and dishwasher, plus French doors that open onto a sizeable garden — ideal for family life and entertaining. A garage and private driveway provide secure parking and storage.

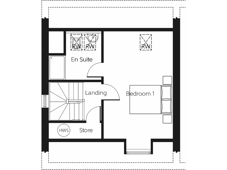
The first floor provides three bedrooms (two doubles) and a family bathroom; bedroom 2 has an en suite. The whole of the second floor is dedicated to the master suite with generous storage and its own en suite, offering privacy for parents. The home benefits from energy-efficient construction and is covered by a 10-year NHBC Buildmark policy, giving buyer protection on a new-build purchase.

Practical costs and local context should be noted: the property is freehold but carries an estate management charge of £290 (below average) and is in council tax band E (above average). The wider development sits in a comfortable suburban setting with very low crime and good commuter links to Swansea, but the area is recorded as having high levels of deprivation — relevant for buyers considering long-term local services and investment outlook.

This plot suits growing families seeking a low-maintenance new home with strong storage, off-street parking and outdoor space, or buyers looking for a modern property with straightforward onward ownership. The property is ready to move into and benefits from a reputable builder’s warranty and energy-efficient features, though buyers should factor in running costs and local area conditions when considering the purchase.

Property Details

Brochure Descriptions

Image Descriptions

Floorplan Description

Rooms

Textual Property Features

Target Audience

AI Tags

Detected Visual Features

Nearest Bars And Restaurants

,,,,}

Nearest General Shops

,,}

Nearest Grocery shops

,,}

Nearest Supermarkets

,,}

Nearest Religious buildings

,,}

Nearest Medical buildings

,,,}

Nearest Leisure Facilities

,,,,}

Nearest Tourist attractions

,,}

Nearest Train stations

,,,,}

Nearest Bus stations and stops

,,,,}

Nearest Hotels

,,}

Tags

Local Market Stats

Similar Properties

Meta

High Res Images

Compatible Images

Low res Images

Thumbnails

Raw Images

High Res Floorplan Images

Compatible Floorplan Images

Low res Floorplan Images

FloorplanImages Thumbnail

Raw Floorplan Images