Chain-free three-bedroom period home with parking and garden, ripe for updating..
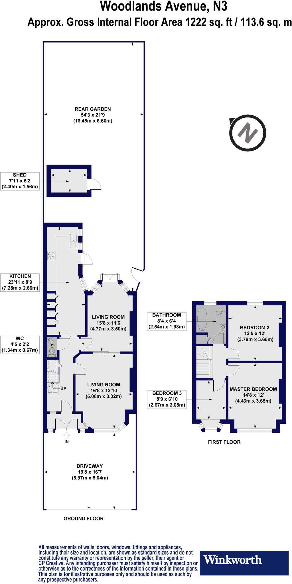
End-of-terrace Victorian house with high ceilings and bay window
Through-lounge plus eat-in kitchen, good natural light
Three bedrooms, single family bathroom on first floor
Off-street driveway parking and private rear garden
Approx. 1,222 sq ft; decent plot depth and garden length
Potential to extend subject to planning permission (STPP)
Requires some modernisation; likely solid brick walls without insulation
Chain free sale, fast broadband and very low local crime
This period-style end-of-terrace on Woodlands Avenue offers a spacious, family-focused layout with genuine scope to personalise. High ceilings and a front bay create classic Victorian character while the through-lounge and eat-in kitchen suit daily family life and entertaining. Off-street parking and a private rear garden add practical appeal for parents and pet owners.
The house is offered chain free and has potential to extend subject to planning permission (STPP), making it attractive to growing families or buyers seeking added value. At about 1,222 sq ft the accommodation feels generous for an urban three-bedroom and benefits from good local schools, fast broadband and very low crime in a well-served part of Finchley.
The property does require some modernisation and updating internally; finishes are generally neutral but not contemporary. The walls are original solid brick (likely without insulation) and there is only one bathroom, so buyers should factor in possible renovation costs when assessing value. An internal viewing will best reveal the retained period features and extension possibilities.
3 bedroom terraced house for sale in Woodlands Avenue, Finchley Central, N3 — £800,000 • 3 bed • 2 bath • 1079 ft²
3 bedroom terraced house for sale in Woodgrange Avenue, North Finchley, N12 — £700,000 • 3 bed • 1 bath • 1058 ft²
3 bedroom terraced house for sale in Woodgrange Avenue, London, N12 — £675,000 • 3 bed • 1 bath • 1029 ft²
4 bedroom terraced house for sale in Woodlands Avenue, Finchley, N3 — £1,000,000 • 4 bed • 1 bath • 1589 ft²
3 bedroom terraced house for sale in Woodgrange Avenue, North Finchley, London, N12 — £600,000 • 3 bed • 1 bath • 1040 ft²
3 bedroom terraced house for sale in Queens Avenue, Finchley, N3 — £850,000 • 3 bed • 1 bath • 1486 ft²


























































