NR12 0EU - 3 bedroom detached house for sale in Mayfield, Coast Road,…

View on Property Piper

3 bedroom detached house for sale in Mayfield, Coast Road, Bacton, Norfolk, NR12

Summary - MAYFIELD COAST ROAD BACTON NORWICH NR12 0EU

3 bed 2 bath Detached

Period detached cottage with courtyard garden, ample parking and easy beach access.
Under one mile to sandy beach and coastal walks
Set in the historic coastal village of Bacton, this detached three-bedroom cottage sits under a mile from the sandy beach and local amenities. The property blends period character — flint and brick façade, two chimneys and fireplaces — with versatile family living including a ground-floor bedroom, cloakroom and a principal suite with en‑suite. A brick-built outbuilding and generous driveway provide useful storage and ample off-road parking.

The rear courtyard garden is private and low-maintenance, opening from a bright kitchen/dining room through double doors for easy indoor–outdoor living. Two reception rooms retain original charm and create flexible living space for family or occasional guests. Practical features include mains gas central heating, double glazing (installation date unknown) and an affordable council tax band.

Buyers should note the house is a pre‑1900 solid brick construction likely without modern cavity insulation and may need targeted renovation or insulating upgrades to improve energy performance. Broadband speeds are average and the wider area records pockets of deprivation despite generally low crime and excellent mobile signal. Overall, the house is well presented and ideal for families seeking characterful village living close to the coast, or buyers prepared to invest in period-property improvements.

Property Details

Brochure Descriptions

Image Descriptions

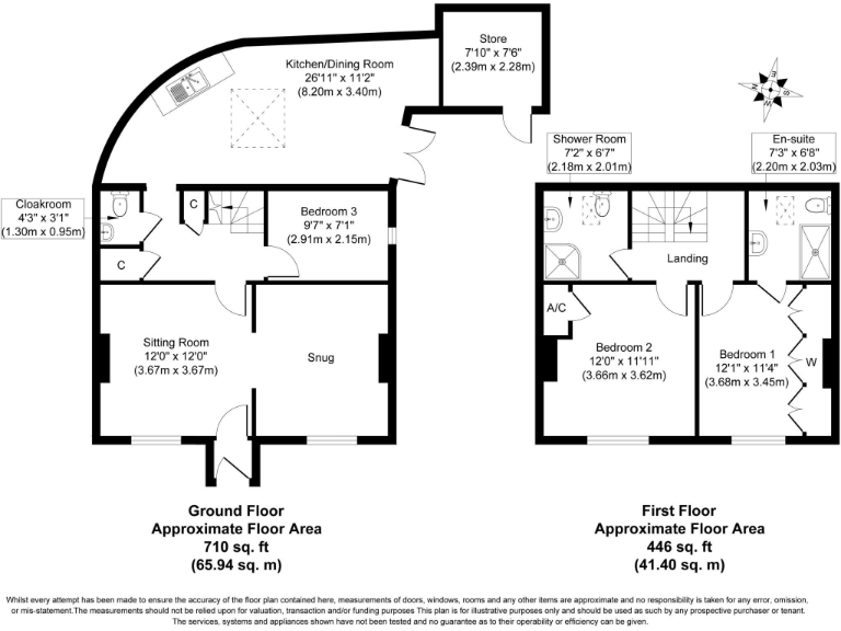
Floorplan Description

Rooms

Textual Property Features

Target Audience

AI Tags

Detected Visual Features

EPC Details

Nearby Schools

Nearest Bars And Restaurants

,,,,}

Nearest General Shops

,,}

Nearest Grocery shops

,,}

Nearest Supermarkets

,,}

Nearest Religious buildings

,,}

Nearest Medical buildings

,,,}

Nearest Leisure Facilities

,,,,}

Nearest Tourist attractions

,,}

Nearest Train stations

,,,,}

Nearest Bus stations and stops

,,,,}

Nearest Hotels

,,}

Tags

Local Market Stats

AirBnB Data

Similar Properties

Meta

High Res Images

Compatible Images

Low res Images

Thumbnails

Raw Images

High Res Floorplan Images

Compatible Floorplan Images

Low res Floorplan Images

FloorplanImages Thumbnail

Raw Floorplan Images