OX5 2JR - 3 bed refurbished threebed flat in Blenheim Court, OX5 2JR

View on Property Piper

3 bedroom flat for sale in Kidlington, Oxfordshire, OX5

Summary - 1 BLENHEIM COURT KIDLINGTON OX5 2JR

3 bed 1 bath Flat

Kitchen/breakfast room, excellent schools nearby and no onward chain.
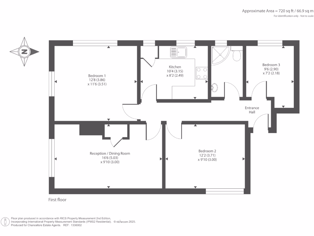
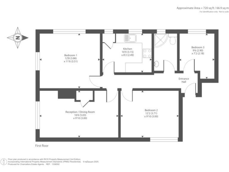
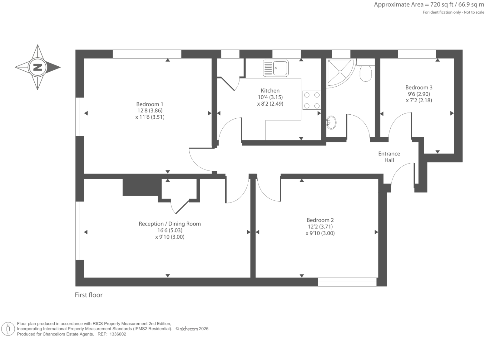
Three bedrooms and a lounge in a recently refurbished layout
Light, newly refurbished accommodation in a quiet Kidlington block, close to good schools and local shops. The flat offers three bedrooms, a lounge and a kitchen/breakfast room, all updated with new finishes and double glazing. Mains gas central heating and a modern bathroom make it ready to occupy.

This is a practical choice for families seeking easy access to highly rated primary and secondary schools, low-crime streets and frequent bus links. The property is chain free and set within a mid-20th century development that provides straightforward, low-maintenance living.

Important practical points: the home is leasehold with around 138 years remaining, and overall living space is described as small (approximately 720 sq ft). The building’s cavity walls are assumed uninsulated, so there is scope to reduce running costs and improve comfort further by investing in insulation improvements.

Suitable for those after a move-in-ready family home or a rental investment in a very affluent area, this flat delivers updated services and local convenience while offering modest potential to add value through energy upgrades.

Property Details

Image Descriptions

Rooms

Textual Property Features

Target Audience

AI Tags

Detected Visual Features

EPC Details

Nearby Schools

Nearest Bars And Restaurants

,,,,}

Nearest General Shops

,,}

Nearest Grocery shops

,,}

Nearest Supermarkets

,,}

Nearest Religious buildings

,,}

Nearest Medical buildings

,,,}

Nearest Leisure Facilities

,,,,}

Nearest Tourist attractions

,,}

Nearest Train stations

,,,,}

Nearest Bus stations and stops

,,,,}

Nearest Hotels

,,}

Tags

Local Market Stats

AirBnB Data

Similar Properties

Meta

High Res Images

Compatible Images

Low res Images

Thumbnails

Raw Images

High Res Floorplan Images

Compatible Floorplan Images

Low res Floorplan Images

FloorplanImages Thumbnail

Raw Floorplan Images