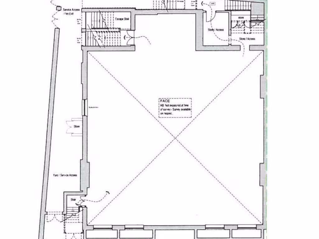
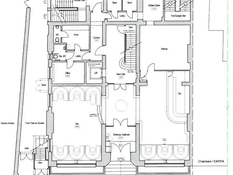
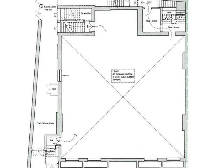
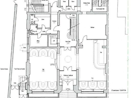
**Standout Features:**
- Grade II Listed Victorian Gothic Revival building
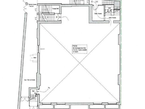
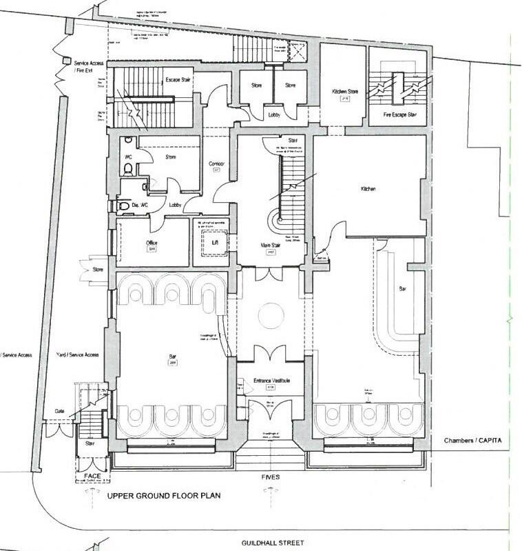
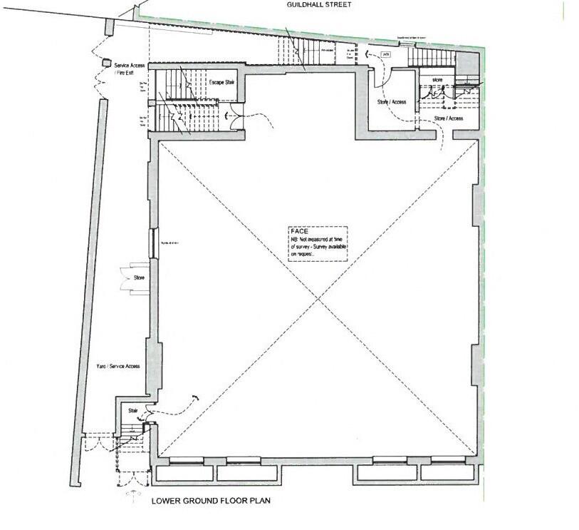
- Spacious 9,900 sq ft over four floors (lower ground, ground, first, second)
- Current use as a restaurant/bar with potential for various commercial or residential uses (subject to planning permission)
- Separate entrance and potential for multilevel operations or themes
- Architectural charm with ornate windows and high ceilings
- Prime location in a multicultural student neighborhood
**Concerns:**
- The property requires restoration and renovation
- High crime rate in the area
- Limited conversion options due to listed status
Discover the expansive possibilities this Grade II Listed landmark offers in Preston! This striking Victorian gothic building, featuring large arched windows and high ceilings, spans 9,900 sq ft across four versatile floors and is ready for a new vision. Whether you aim to continue its legacy as a vibrant restaurant/bar or seek to transform it into an airy residential space, the extensive square footage opens doors for multiple commercial or mixed-use ventures—subject to planning permission.
Nestled in the heart of a bustling, multicultural neighborhood, this property benefits from excellent mobile and broadband connectivity, catering to an evolving urban lifestyle. However, potential buyers should consider the necessary renovation to restore its historic charm, along with navigating the complexities of its listed status. With its unique architectural character, generous space, and flexible usage options, this property is an exciting investment opportunity that combines heritage with future potential. Seize the chance to own a piece of Preston's architectural history—act quickly as such properties don’t stay on the market for long!
Commercial property for sale in 119-120 Friargate, Preston, Lancashire, PR1 — £375,000 • 1 bed • 1 bath • 3000 ft²
Commercial development for sale in Trinity House, 88-96 Market Street West, Preston, Lancashire, PR1 — £750,000 • 1 bed • 1 bath • 9913 ft²
High street retail property for sale in 8 Lune Street, Preston, Lancashire, PR1 — £175,000 • 1 bed • 1 bath • 1981 ft²
High street retail property for sale in Lune Street, Preston, PR1 — £175,000 • 1 bed • 1 bath • 1708 ft²
High street retail property for sale in 25-27 And 30-31 , Fishergate, Preston, Lancashire, PR1 — POA • 1 bed • 1 bath
1 bedroom apartment for sale in City Bridge Apartments, Glovers Court, Preston, PR1 — £130,000 • 1 bed • 1 bath










































































































































































































