**Standout Features:**
- Historic former textile mill dating back to 1882
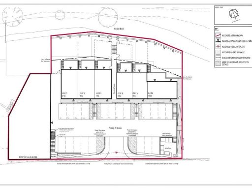
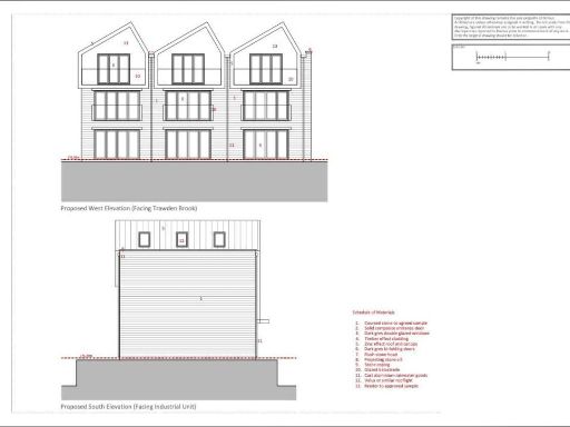
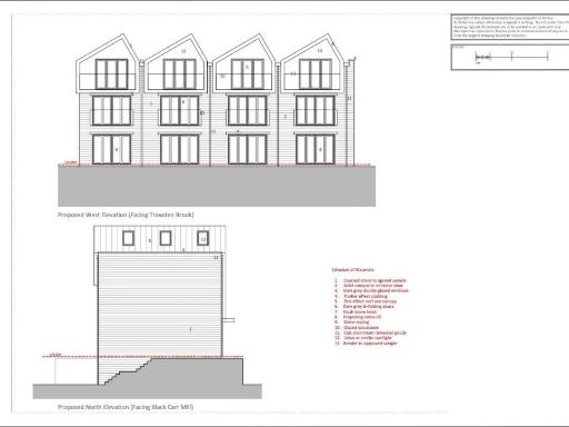
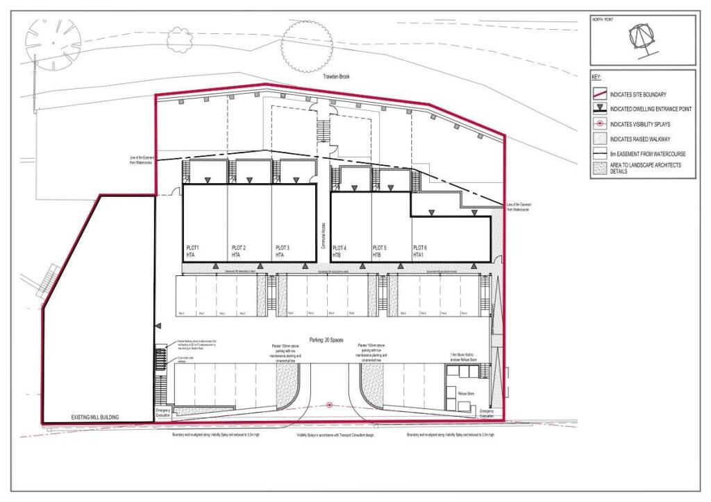
- Planning permission granted for conversion into 8 apartments and construction of 6 townhouses
- Substantial initial renovation completed, including mill clearance and weaving shed demolition
- Located in the picturesque village of Trawden with low crime and excellent local amenities
- Affluent community with top-rated schools nearby
Take advantage of this exceptional opportunity to own a piece of history with the potential to create a unique residential development in Black Carr Mill, Trawden. Originally built in the early 1880s, this stone-built textile mill has planning permission for the transformation of its upper and part-ground floors into 8 modern apartments, alongside the construction of 6 stylish townhouses, all set against the serene backdrop of Lancashire’s countryside.
Significant groundwork has already been undertaken, paving the way for ambitious renovations that promise to maximize the site’s potential. Nestled in a charming community, the location offers a superb quality of life with picturesque streets, outdoor pursuits, and convenient access to amenities, including traditional pubs and schools boasting "Good" and "Outstanding" ratings from Ofsted.
However, prospective buyers should note that further due diligence is required regarding certain elements of the property’s current condition. With a freehold title and a structure poised for growth, this property represents a rare chance to invest in a desirable area, making it perfect for developers or those looking to capitalize on Trawden’s rural charm and modern conveniences. Don’t miss out on this unique venture—opportunities like this don’t stay on the market for long!
Land for sale in Hollins Road, Walsden, Todmorden, OL14 — £500,000 • 1 bed • 1 bath • 1582 ft²
4 bedroom town house for sale in Plot 1 Baildon Mills, Baildon BD17 6JX, BD17 — £369,950 • 4 bed • 1 bath • 2000 ft²
Mill for sale in Trafalgar Street, Burnley, Lancashire, BB11 — £1,300,000 • 1 bed • 4 bath
2 bedroom apartment for sale in Plot 6 Baildon Mills, Baildon BD17 6JX, BD17 — £159,950 • 2 bed • 1 bath • 2000 ft²
Residential development for sale in Land at Trinity Street, Hebden Bridge, HX7 — POA • 1 bed • 1 bath
2 bedroom barn conversion for sale in Becks Crossing Skipton Road, Colne, BB8 — £75,000 • 2 bed • 1 bath • 518 ft²






































































