**Standout Features:**
- Uninterrupted sea views, including Flamborough Head
- Private balcony for coastal relaxation
- Dedicated parking space
- Prime Bridlington location, close to beach and amenities
- Share of freehold leasehold
- Affordable council tax and average crime rate
- Fast broadband and excellent mobile service
**Property Summary:**
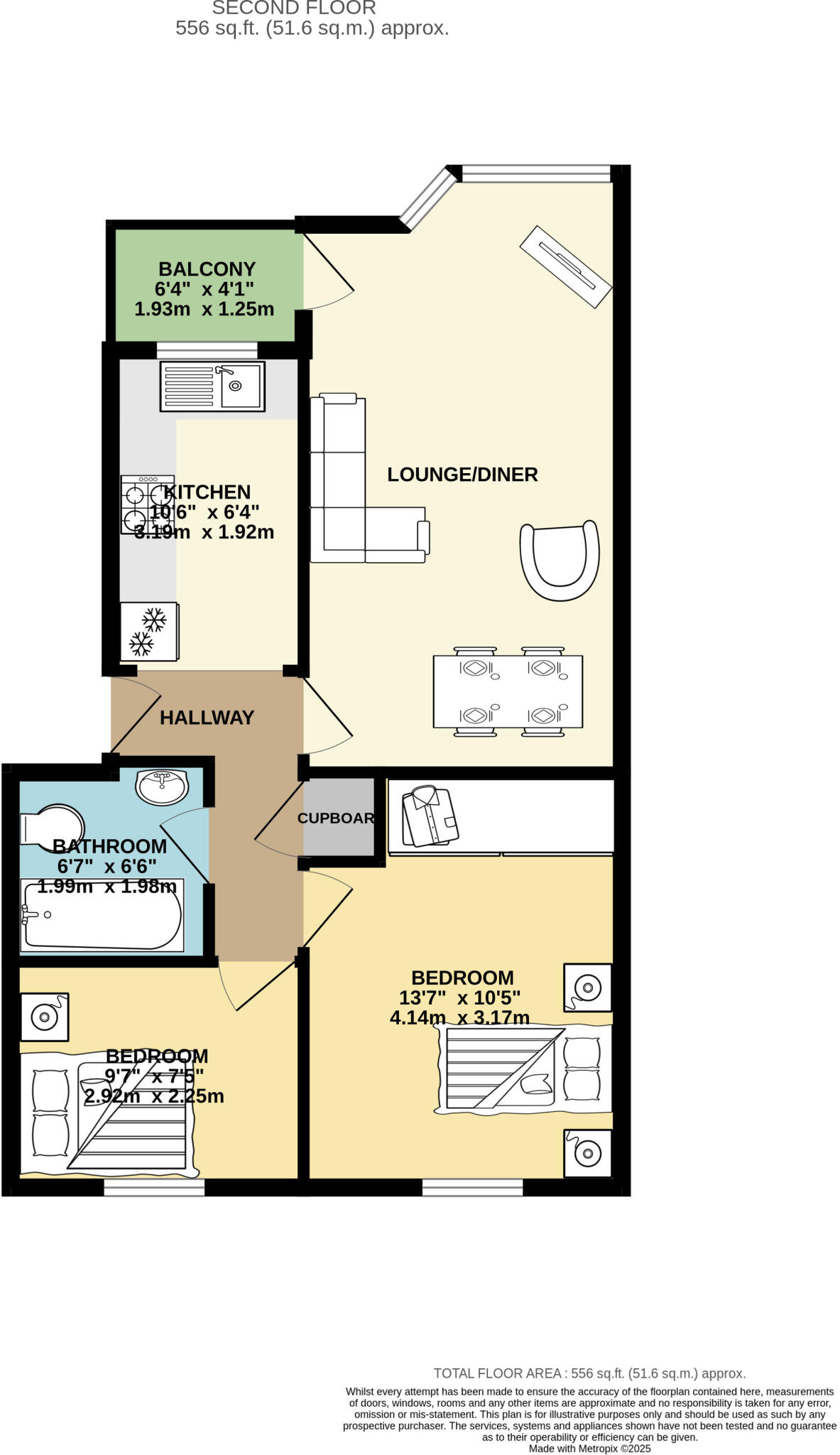
Discover luxury coastal living in this charming two-bedroom upper-floor apartment in coveted Bridlington. Marvel at panoramic uninterrupted sea views stretching towards Flamborough Head from your private balcony, offering an ideal spot for morning coffees and evening sunsets. The stylish, modern living room with a bay window floods the space with natural light, complemented by the efficient size of the well-proportioned bedrooms. Enjoy the convenience of dedicated off-street parking, while being just moments away from local cafés, shops, and the beach.
This property represents an excellent opportunity for first-time buyers or retirees seeking a serene lifestyle with low maintenance. Annual costs are manageable at £1,200, contributing to the shared ownership of the freehold. While the apartment is in good condition, keep in mind the communal features and age of the building may require some future updates. Seize this rare chance to own a slice of the Yorkshire coast, where you can enjoy a relaxed yet vibrant community lifestyle with every sunset. Don't miss out; this exquisite apartment won’t be available for long!
2 bedroom apartment for sale in Alexandra Court, Bridlington, East Yorkshire, YO15 — £180,000 • 2 bed • 1 bath • 577 ft²
2 bedroom apartment for sale in Alexandra Court, Bridlington, YO15 — £210,000 • 2 bed • 1 bath • 547 ft²
2 bedroom apartment for sale in Summerfield Road, Bridlington, East Yorkshire, YO15 — £120,000 • 2 bed • 1 bath • 536 ft²
2 bedroom apartment for sale in Alexandra Court, Bridlington, East Riding of Yorkshire, YO15 — £210,000 • 2 bed • 1 bath • 635 ft²
2 bedroom flat for sale in Bayside, York Road, Bridlington, YO15 — £127,000 • 2 bed • 1 bath • 608 ft²
2 bedroom apartment for sale in Highcliffe Court, St Annes Road, Bridlington, East Yorkshire, YO15 — £164,995 • 2 bed • 1 bath • 671 ft²






































































