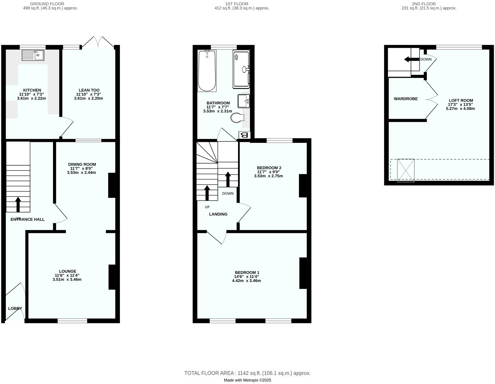
**Standout Features:**
- Victorian mid-terrace style with classic architectural charm.
- Three spacious double bedrooms perfect for families or investment.
- Generous living space across three floors.
- Private garden enhancing outdoor living.
- Modern bathroom.
- Excellent mobile signal and fast broadband speeds.
- Low council tax and low crime area.
**Potential Concerns:**
- Requires renovation to modernize and maximize value.
- Small plot size may limit future expansions.
**Summary:**
Discover a charming three-bedroom Victorian mid-terrace house perfectly situated in the desirable Level area of St Thomas, Exeter. This spacious property, spread across three floors, is ideal for first-time buyers or investors looking for a property ripe for personalization. The generous double bedrooms offer abundant space, and the modern bathroom ensures comfort. Step outside to find a garden ready for your creative touch. While the home is well-maintained, it does require renovation to truly shine, providing a unique opportunity to enhance its character and value.
With low council tax, an excellent mobile signal, and fast broadband, this property ticks all the boxes for convenient modern living. Its location also boasts easy access to various local amenities, schools, and public transport options, making it an attractive option for families. Don’t miss your chance to make this Victorian treasure your own!
2 bedroom terraced house for sale in Buller Road, Exeter, Devon, EX4 — £260,000 • 2 bed • 1 bath • 682 ft²
2 bedroom terraced house for sale in Courtenay Road, Exeter, Devon, EX2 — £210,000 • 2 bed • 1 bath • 734 ft²
2 bedroom terraced house for sale in Looe Road, Exeter, Devon, EX4 — £240,000 • 2 bed • 1 bath • 508 ft²
3 bedroom house for sale in Cowick Street, St Thomas, EX4 — £275,000 • 3 bed • 1 bath • 808 ft²
3 bedroom terraced house for sale in Union Street, St Thomas, EX2 — £239,500 • 3 bed • 1 bath • 1012 ft²
3 bedroom terraced house for sale in Rugby Road, Exeter, EX4 — £270,000 • 3 bed • 1 bath • 610 ft²


































































