Auction-ready three-bed with garage and rental potential for hands-on buyers.
Freehold three-bedroom semi-detached with garage and small rear garden
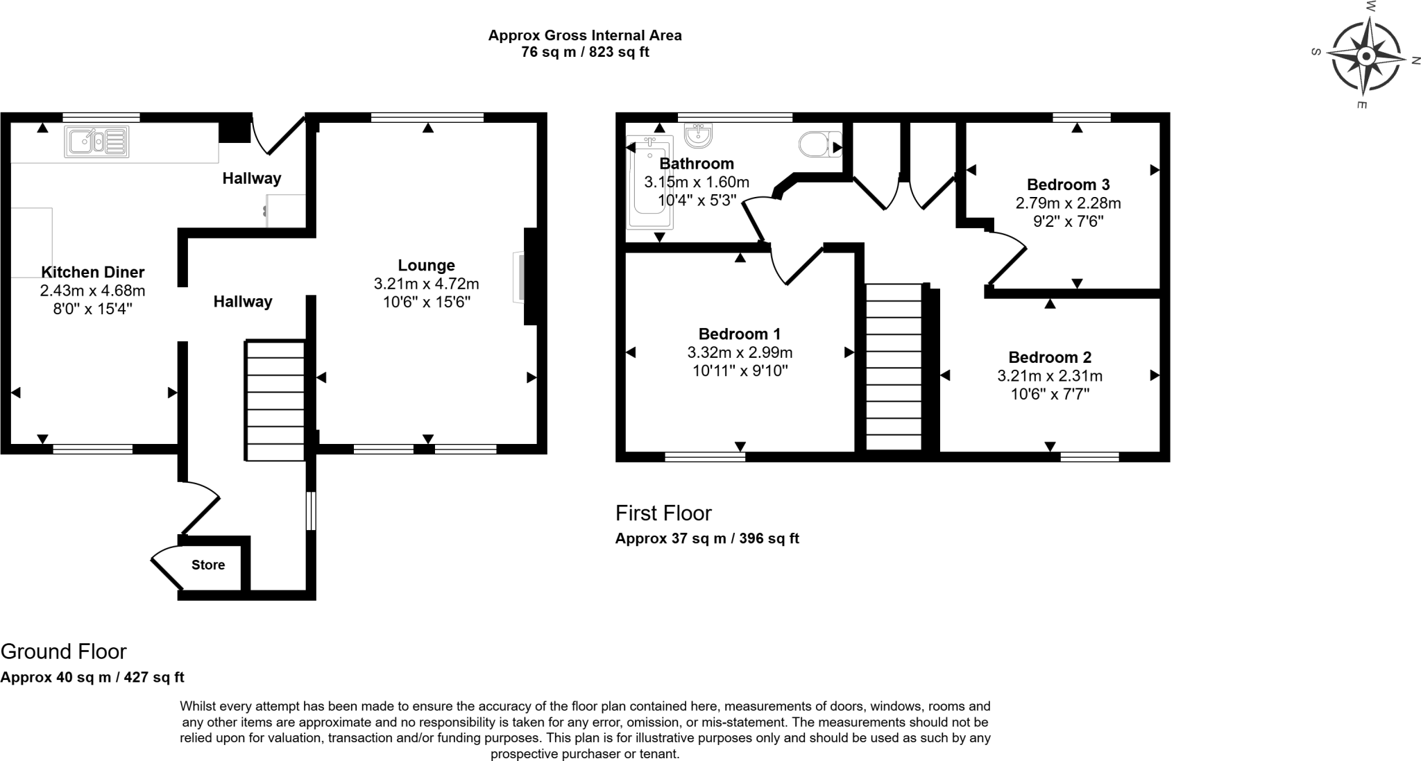
About 823 sq ft; conventional lounge/diner and breakfasting kitchen
Needs full cosmetic modernisation throughout; kitchen dated and uncared-for
Projected rental income circa £800 pcm (approximate, not guaranteed)
EPC rating D; double glazing installed before 2002
High local crime rate and area classed as very deprived
Auction sale — administration fee £3,600 on exchange; check legal pack
Vacant possession on completion; buyer to verify services and tenure
This three-bedroom semi-detached house on Salcombe Court is offered for sale at auction and priced to reflect significant renovation needs. The property is freehold, vacant on completion and provides straightforward scope to add value through cosmetic and kitchen/bathroom modernisation. A garage and small rear garden add practical appeal for occupiers or tenants.
The house totals approximately 823 sq ft and dates from the late 1970s/early 1980s. It has gas central heating to radiators, double glazing fitted before 2002 and an EPC D. The internal layout includes lounge/diner, breakfasting kitchen, store and three first-floor bedrooms with a family bathroom — a conventional, easy-to-adapt plan for refurbishment or rental conversion.
Investors will note a projected rental estimate of about £800 pcm based on comparable local evidence, and the property sits in an area of strong rental demand. Buyers should factor in an auction administration fee of £3,600 (inc VAT) payable on exchange and consult the legal pack for any further disbursements and tenure details.
Material drawbacks are clear: the home requires renovation throughout, the kitchen and some areas are described as neglected, and the immediate area records high crime and very high deprivation. Prospective purchasers must rely on their own surveys and statutory checks — services and installations have not been verified and may need repair or replacement.
3 bedroom semi-detached house for sale in North Parade, Scunthorpe, DN16 2PG, DN16 — £75,000 • 3 bed • 1 bath • 1023 ft²
3 bedroom terraced house for sale in Hilton Avenue, Scunthorpe, Lincolnshire, DN15 — £119,950 • 3 bed • 1 bath • 875 ft²
3 bedroom semi-detached house for sale in 36 Lancaster Road, Scunthorpe, Lincolnshire DN16 3JL, DN16 — £85,000 • 3 bed • 1 bath
2 bedroom detached bungalow for sale in Burringham Road, Scunthorpe, DN17 — £140,000 • 2 bed • 1 bath • 568 ft²
3 bedroom semi-detached house for sale in Cornwall Road, Scunthorpe, DN16 — £143,000 • 3 bed • 1 bath • 825 ft²
3 bedroom semi-detached house for sale in Abbey Road, Scunthorpe, DN17 — £130,000 • 3 bed • 1 bath • 634 ft²






































