Move-in ready four-bed family house with private garden and integral garage.
Built 2020 — modern, show-home standard throughout
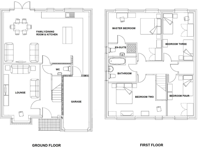
A modern, detached executive home built in 2020 and presented to show-home standard, this four-bedroom house suits families wanting move-in ready living. The ground floor centres on a large open-plan family, dining and kitchen area with quartz-topped Shaker units, an island breakfast bar and patio doors that lead to a private, easterly-facing garden with a wooded backdrop. A separate lounge gives a quieter reception space for children or visitors.
Upstairs the master bedroom includes an en-suite and a dressing area; three further generous bedrooms and a family bathroom with separate shower cubicle provide flexible sleeping arrangements. Practical extras include an integral garage, a double driveway and an EPC B rating. The plot feels larger than average for the development and benefits from pleasant rear outlooks and multiple patio/deck seating areas.
Notable practical points: the house is freehold and has mains gas central heating with radiator boilers; broadband speeds in the area are reported as slow which may affect home working or streaming without an upgraded connection. Council tax is described as expensive. Overall this is a well-presented family home on a small, select development, offering contemporary finishes and straightforward upkeep rather than requiring renovation.
4 bedroom detached house for sale in Charlestown View, Glossop, SK13 — £379,950 • 4 bed • 2 bath • 1163 ft²
4 bedroom detached house for sale in Heath Fold, Glossop, Derbyshire, SK13 — £599,950 • 4 bed • 2 bath • 1700 ft²
4 bedroom detached house for sale in Hawthorn Drive, Glossop, Derbyshire, SK13 — £465,000 • 4 bed • 2 bath • 1366 ft²
4 bedroom semi-detached house for sale in Millpond Close, Chinley, High Peak, SK23 — £365,000 • 4 bed • 2 bath • 1249 ft²
4 bedroom detached house for sale in North Road, Glossop, SK13 — £535,000 • 4 bed • 2 bath • 1644 ft²
4 bedroom detached house for sale in Storth Brook Court, Glossop, SK13 — £850,000 • 4 bed • 4 bath • 2400 ft²


























































































