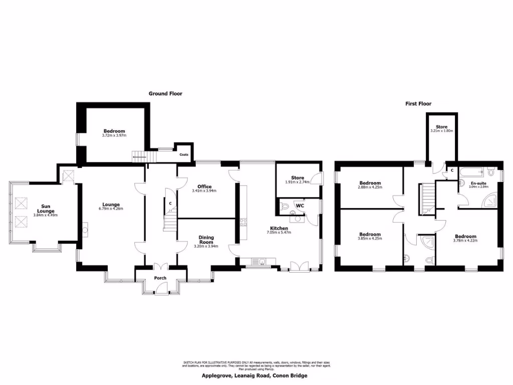
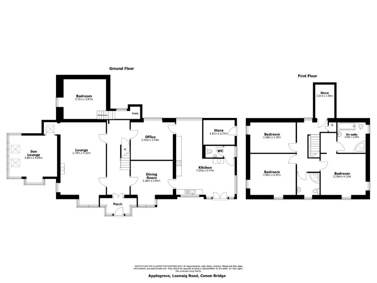
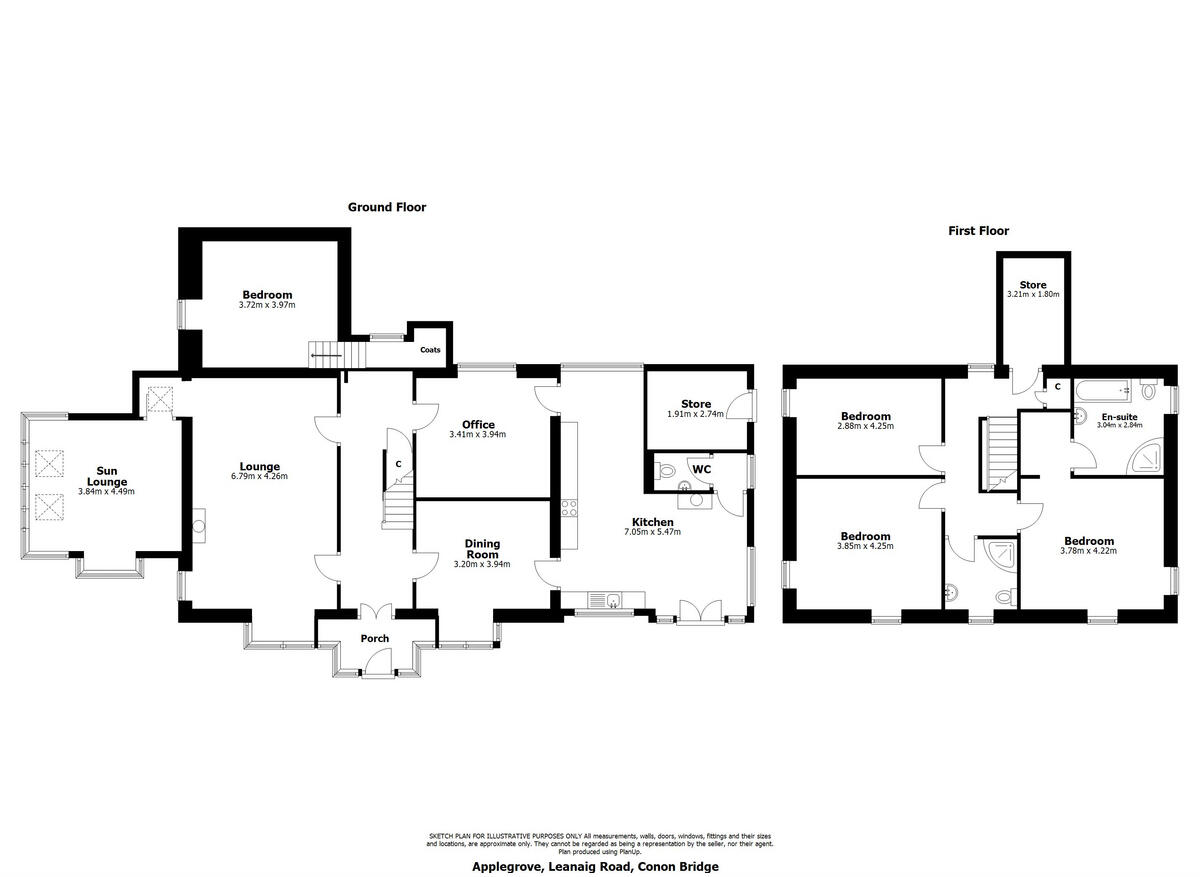
**Standout Features:**
- Over 220 square meters of internal living space
- Four spacious double bedrooms, including a luxury en-suite master
- Elegant lounge with a feature fireplace and a cozy family room with a log-burning stove
- Bright sun lounge offering beautiful garden views
- Newly renovated with a charming Victorian aesthetic
- Large off-street driveway accommodating multiple vehicles
- Attractive gardens with a mix of hedging and stone walls, complete with a timber shed
**Potential Concerns:**
- Listed status may present future renovation challenges
- The area classified as 'very deprived' may affect property value and resale
Embrace a blend of elegance and modern comfort in this newly renovated Victorian semi-detached home, nestled in the tranquil village of Conon Bridge. Boasting over 220 square meters of living space, this property showcases four generous double bedrooms, with the master suite presenting a luxurious retreat complete with an en-suite bath. The large, light-filled lounge features a striking fireplace, while a cozy family room with a log-burning stove invites warmth and relaxation. A bright sun lounge merges the indoors with the serene garden views, perfect for family gatherings or quiet retreat.
On a substantial plot with ample off-street parking, this home is ideal for families seeking space and character. While the property benefits from its charming aesthetic and modern updates, the listed status may pose some restrictions for future renovations. Conveniently located, Conon Bridge offers essential amenities with a strong community vibe and easy access to local schools and outdoor activities. Don’t miss this opportunity—properties like this seldom remain on the market for long.
4 bedroom detached house for sale in Station Road, Conon Bridge, Dingwall, Highland, IV7 — £375,000 • 4 bed • 2 bath • 1570 ft²
3 bedroom semi-detached house for sale in Riverbank Road, Conon Bridge, IV7 8BT, IV7 — £155,000 • 3 bed • 1 bath • 969 ft²
4 bedroom detached house for sale in High Street, Conon Bridge, IV7 — £320,000 • 4 bed • 2 bath • 1662 ft²
4 bedroom bungalow for sale in Wyvis Crescent, Conon Bridge, IV7 — £300,000 • 4 bed • 2 bath • 2275 ft²
4 bedroom detached house for sale in Ardival, Strathpeffer, IV14 9DS, IV14 — £495,000 • 4 bed • 6 bath • 2906 ft²
4 bedroom semi-detached house for sale in Ballifeary Lane, Inverness, IV3 — £300,000 • 4 bed • 3 bath • 977 ft²






































































































































































































