Spacious top-floor penthouse blending Victorian character with high-spec modern living.
Top-floor penthouse with wraparound private balcony and dual-aspect views
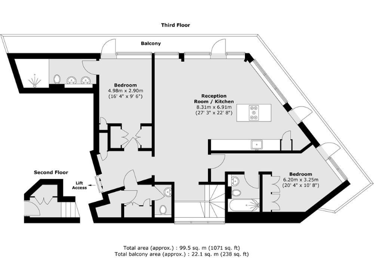
Large open-plan living/kitchen — approx. 1,071 sq ft of internal space
High-spec finishes: Siemens appliances, quartz worktops, underfloor heating
Lift access directly to apartment; allocated underground storage included
Long lease (circa 241 years) and strong EPC (~84)
Above-average service charge ~£7,000 pa (noted ongoing cost)
Ground rent £550 pa (relatively high for a flat)
Built 2015 conversion; modern systems but leasehold tenure applies
Set atop a converted Victorian pub on Upper Richmond Road, this top-floor penthouse combines period character with contemporary fixtures. The lateral layout spans around 1,071 sq ft and centres on a generous open-plan kitchen/living space that opens onto a private wraparound balcony with far-reaching street and city outlooks. High-spec finishes include a Häcker kitchen with Siemens appliances, quartz worktops, engineered oak flooring, underfloor heating and air conditioning.
Both double bedrooms are served by en-suite facilities and fitted wardrobes, giving flexible accommodation suited to working professionals, couples or small families. Practical conveniences include lift access directly to the apartment, video entry, allocated underground storage, good local transport links (East Putney, Putney and Barnes stations) and fast broadband — useful for hybrid working.
Leasehold tenure is long (circa 241 years) and the apartment was converted in 2015, so major structural works are unlikely in the short term. Energy performance is strong (EPC ~84), reflecting efficient windows and insulation.
Notable costs to factor in: an above-average service charge (approx. £7,000 pa) and a relatively high ground rent (£550 pa). The property suits buyers prioritising spacious, well-lit lateral living and lifestyle, but those seeking freehold ownership or lower ongoing charges should be aware of the leasehold costs.
2 bedroom flat for sale in Upper Richmond Road, Putney, SW15 — £600,000 • 2 bed • 2 bath • 935 ft²
2 bedroom apartment for sale in Rayners Road, Putney, SW15 — £995,000 • 2 bed • 2 bath • 872 ft²
2 bedroom penthouse for sale in Kersfield Road, Putney, London, SW15 — £1,000,000 • 2 bed • 2 bath • 1120 ft²
2 bedroom penthouse for sale in Upper Richmond Road, London, SW15 — £1,750,000 • 2 bed • 2 bath • 1628 ft²
2 bedroom apartment for sale in Carlton Drive, London, SW15 — £775,000 • 2 bed • 2 bath • 976 ft²
2 bedroom penthouse for sale in Norroy Road, Putney, London, SW15 — £725,000 • 2 bed • 1 bath • 732 ft²






























































