Characterful family house with private parking and distant countryside views.
Four good-sized double bedrooms across three floors
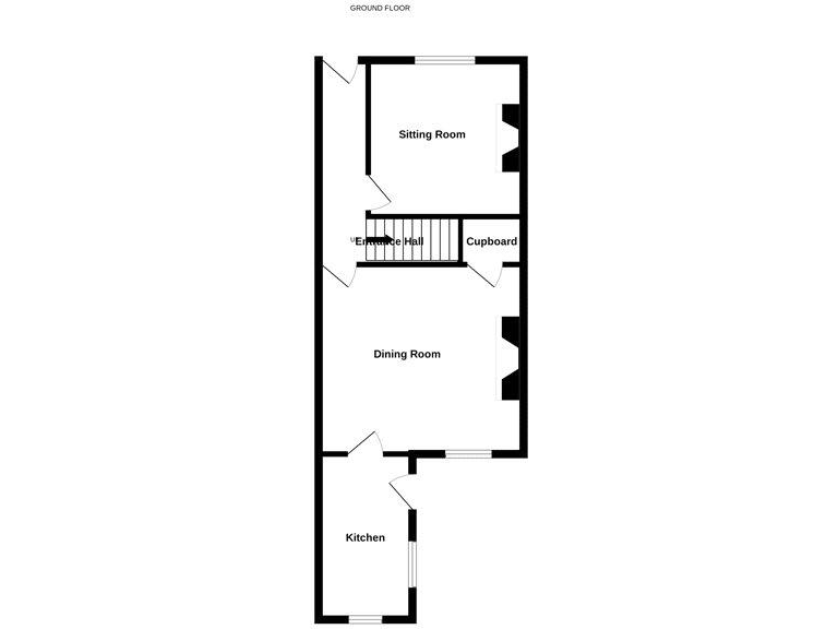
This well-presented Victorian terraced house offers deceptively spacious living across three storeys, arranged as four double bedrooms and generous reception rooms. Recent investment includes a full re-roof to the dormas in June 2024, covered by a 25-year workmanship guarantee, and the home benefits from gas central heating and UPVC double glazing.
Set on a small plot in the centre of Bradley village, the house has a low-maintenance south-westerly front garden and a flagged rear yard that provides private off-street parking for one car. Two second-floor dormer bedrooms enjoy long-distance countryside views; the ground and first floors retain original features such as fireplaces, cornicing and engineered oak flooring alongside modern fitted kitchen units and underfloor heating in the kitchen.
Practical points to note: the property is compact at approximately 761 sq ft and sits on a small plot, so outdoor space and storage are limited. There is only one bathroom serving four bedrooms, and the location is classified as having a medium flood risk. All mains services are connected, but any appliances or installations should be independently checked before purchase.
For families, the village location is a major draw: highly regarded primary schooling in the locality, good secondary options nearby and easy access to Skipton’s wider amenities. This house will suit buyers looking for characterful, village-centre living with recent structural work completed and potential to adapt interior layouts to suit growing needs.
3 bedroom terraced house for sale in 3 Oak Lea, Bradley, Skipton, BD20 9EQ, BD20 — £269,950 • 3 bed • 1 bath • 333 ft²
3 bedroom semi-detached house for sale in 4 Woodfield Drive, Bradley, BD20 9EN, BD20 — £275,000 • 3 bed • 1 bath • 808 ft²
3 bedroom town house for sale in Woodlands, Skipton Road, Bradley BD20 9EF, BD20 — £249,950 • 3 bed • 1 bath • 950 ft²
4 bedroom semi-detached house for sale in Yew Tree Close, Bradley, North Yorkshire, BD20 — £500,000 • 4 bed • 2 bath • 1839 ft²
3 bedroom semi-detached house for sale in Skipton Road, Bradley, North Yorkshire, BD20 — £365,000 • 3 bed • 1 bath • 1038 ft²
3 bedroom end of terrace house for sale in 1 Prospect Terrace, Bradley, BD20 9EU, BD20 — £275,000 • 3 bed • 1 bath • 1159 ft²






























































































