Characterful two-bedroom Grade II apartment near the River Thames, ideal for families prepared for listed-property ownership..
Share of freehold with Ground Floor access and shared rear garden
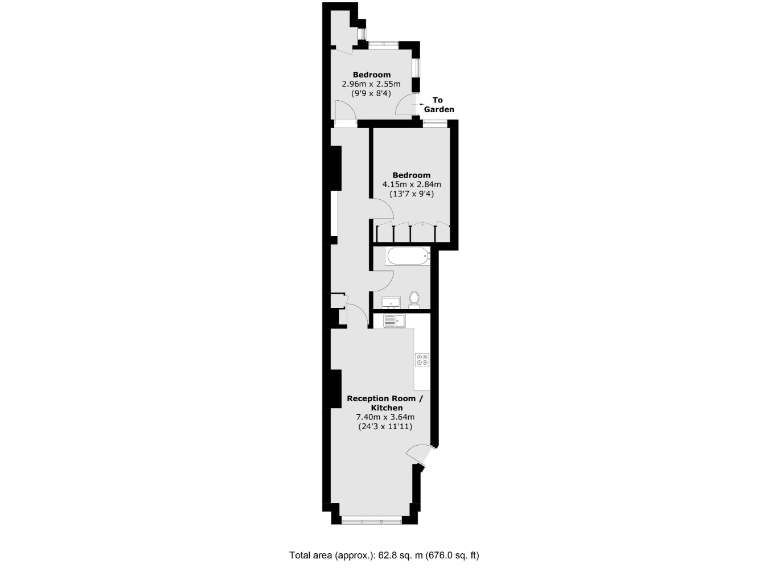
Set in the heart of Lower Sunbury Village, this ground-floor Grade II listed conversion blends Georgian character with generous living space. The apartment offers a large reception that separates living and dining areas and benefits from high ceilings and tall period windows that flood rooms with natural light. A 200 sq ft loft adds notable storage or conversion potential subject to listed building consents.
Practical features include a share of freehold, direct access to a shared rear garden and an average-sized footprint of about 676 sq ft, suitable for a small family or professional sharers. The property is close to the River Thames, local shops, gastro pubs and several well-regarded schools, making it convenient for family life and weekend leisure.
Buyers should be aware this is a listed building (Grade II) dating from 1856 — any alterations will require listed-building consent and will limit refurbishment options. Heating is by electric room heaters and the property has solid brick walls with no assumed insulation, so expect higher running costs and potential upgrading work. Flood risk is medium; buyers should confirm insurance and flood-prevention history.
Overall, this characterful flat offers period charm, a rare village location and clear potential, but suits buyers prepared for the constraints and maintenance considerations that come with a historic conversion.
2 bedroom flat for sale in Lower Square, Old Isleworth, TW7 — £499,950 • 2 bed • 1 bath • 705 ft²
2 bedroom maisonette for sale in Thames Street, Sunbury On Thames, TW16 — £325,000 • 2 bed • 1 bath • 528 ft²
2 bedroom flat for sale in Thamesfield House, Russell Road, Shepperton, TW17 — £500,000 • 2 bed • 2 bath • 1117 ft²
5 bedroom terraced house for sale in Thames Street, Sunbury-on-Thames, Surrey, TW16 — £2,250,000 • 5 bed • 4 bath • 3604 ft²
5 bedroom detached house for sale in Thames Street, Sunbury-On-Thames, Surrey, TW16 — £1,875,000 • 5 bed • 3 bath • 3823 ft²
2 bedroom flat for sale in Thames Street, Sunbury-On-Thames, TW16 — £350,000 • 2 bed • 1 bath • 695 ft²






































