Large period home with studio and strong rental potential near stations.
Six bedrooms and five/six bathrooms across lower-ground to loft levels
Garden studio/outbuilding plus roof terrace for extra accommodation
Size c.1715 sq ft; useful footprint for conversion or refurbishment
HMO potential (subject to licence and necessary consents)
Small plot and modest street frontage typical of dense terraces
Area records high crime and local deprivation—affects appeal
Requires internal modernisation/reconfiguration to maximise value
Fast broadband and excellent mobile signal ideal for tenants/home workers
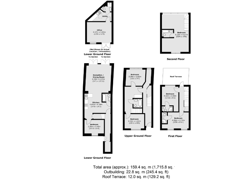
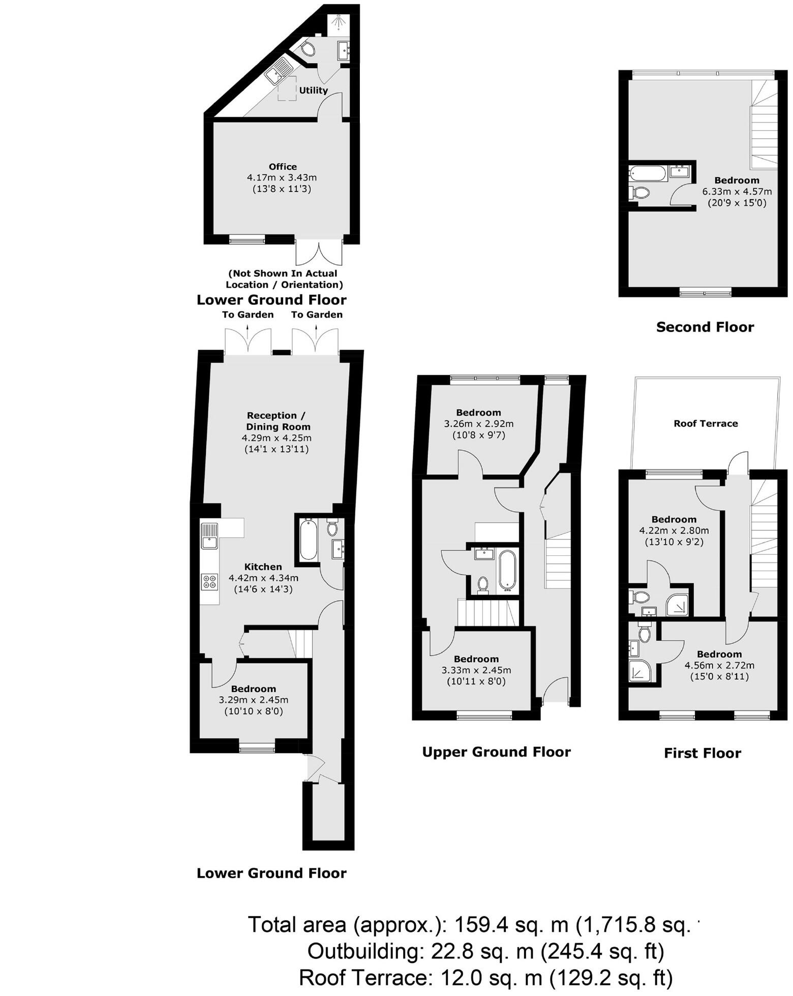
A substantial mid-terrace Victorian townhouse offering six bedrooms, multiple bathrooms and flexible living over lower-ground, three main floors and a loft. The property includes a separate garden studio and a roof terrace, which together add useful ancillary space for home working, guests or rental income. Located within easy reach of New Cross and New Cross Gate stations, the house suits buyers seeking strong rental demand or a large family home close to central London links.
The layout and size (c. 1,715 sq ft plus outbuilding) make the house well suited to conversion to HMO use (subject to licence and consents) or to be reconfigured for modern family living. Three bedrooms have en-suite facilities and the open-plan kitchen/reception opens to the garden level, providing practical circulation for multi-occupancy or family use. Fast broadband and excellent mobile signal support remote working or multiple tenants.
Buyers should note material drawbacks: the area records high crime and local deprivation, which can affect rental yields and resale appeal for some purchasers. The plot is small and street frontage is typical of dense terraces; external curb appeal is limited. The property will benefit from internal modernisation and possible reconfiguration to maximise its full value — works and consent costs should be factored into budgets.
Overall, this is a clear opportunity for an investor targeting inner-London rental demand or for a larger household wanting spacious, period accommodation close to transport and local amenities. The combination of HMO potential, additional studio and roof terrace create genuine upside once planning and refurbishment decisions are confirmed.
3 bedroom terraced house for sale in Alpha Road, London, SE14 — £810,000 • 3 bed • 3 bath • 1195 ft²
6 bedroom terraced house for sale in New Cross Road, London, SE14 — £1,250,000 • 6 bed • 1 bath • 1427 ft²
6 bedroom terraced house for sale in Westdown Road, Catford, London, SE6 — £700,000 • 6 bed • 3 bath • 1434 ft²
6 bedroom detached house for sale in London Road, Croydon, CR0 — £1,000,000 • 6 bed • 1 bath • 3408 ft²
5 bedroom terraced house for sale in Cold Blow Lane, New Cross, London, SE14 — £700,000 • 5 bed • 4 bath • 921 ft²
6 bedroom terraced house for sale in Talfourd Road, Peckham, SE15 — £1,850,000 • 6 bed • 2 bath • 2457 ft²










































































