W2 3HH - 2 bed hyde park ground floor flat in Gloucester Terrace, W2…

View on Property Piper

2 bedroom flat for sale in Gloucester Terrace, Hyde Park, W2

Summary - 82 GLOUCESTER TERRACE LONDON W2 3HH

2 bed 1 bath Flat

Characterful Victorian apartment near Paddington and Hyde Park, ready to occupy.
Two double bedrooms with built-in storage
Ground-floor apartment — no private outdoor space
High ceilings and bay-fronted reception with original fireplace
Recently refurbished; modern kitchen and bathroom
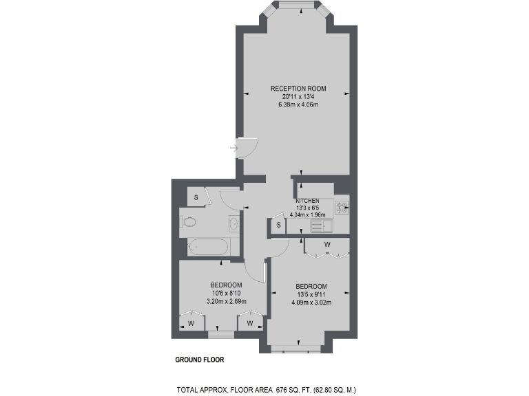
Approx 676 sq ft — good central London proportions
Share of freehold; 999-year lease remaining
Service charge £3,294 pa; Council Tax Band E (above average)
Local crime level is high; building likely has solid-brick walls (no insulation)
Recently refurbished two-bedroom ground-floor apartment set on Gloucester Terrace, a short walk from Hyde Park and Paddington station. High ceilings, a bay-fronted reception and original Victorian features give the flat strong period character while contemporary finishes provide move-in readiness.

The layout includes a separate modern kitchen, two double bedrooms, a tiled bathroom with shower-over-bath and useful built-in storage. At approximately 676 sq ft the accommodation is well-proportioned for central London living and suits both owner-occupiers and investors seeking rental appeal.

Practical considerations are straightforward: share of freehold with a 999-year lease, an annual service charge of £3,294 and Council Tax Band E. Ground-floor position means no private outdoor space and slightly reduced privacy compared with upper floors. The area benefits from excellent transport links, fast broadband and proximity to shops, cafés and green space.

Buyers should note the local crime level is high for the neighbourhood and the building’s solid-brick construction likely lacks modern cavity insulation. Overall, this is a characterful, ready-to-live-in central London flat with good long-lease security and clear rental or owner-occupation potential.

Property Details

Brochure Descriptions

Image Descriptions

Rooms

Textual Property Features

Target Audience

AI Tags

Detected Visual Features

EPC Details

Nearby Schools

Nearest Bars And Restaurants

,,,,}

Nearest General Shops

,,}

Nearest Grocery shops

,,}

Nearest Supermarkets

,,}

Nearest Religious buildings

,,}

Nearest Medical buildings

,,,}

Nearest Airports

,}

Nearest Leisure Facilities

,,,,}

Nearest Tourist attractions

,,}

Nearest Train stations

,,,,}

Nearest Bus stations and stops

,,,,}

Nearest Hotels

,,}

Tags

Local Market Stats

AirBnB Data

Similar Properties

Meta

High Res Images

Compatible Images

Low res Images

Thumbnails

Raw Images

High Res Floorplan Images

Compatible Floorplan Images

Low res Floorplan Images

FloorplanImages Thumbnail

Raw Floorplan Images