Affordable entry in a quiet, well-connected village with parking and EV point.
3 bedrooms in a newly built terraced house, open-plan living/dining
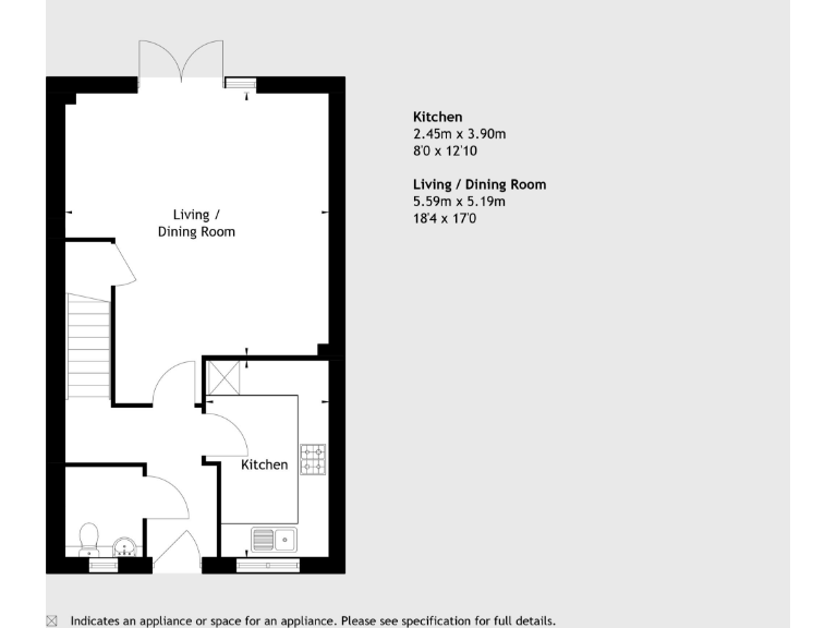
A compact, newly built three-bedroom terraced house offered as shared ownership, ideal for first-time buyers seeking an affordable entry into an affluent village setting. The open-plan living/dining area leads to a turfed rear garden, and the fitted kitchen includes integrated appliances for low-maintenance living. Two allocated parking spaces and an EV charging point are included — useful extras in a village location.
Practical running costs are set out: a 25% minimum share of £153,750, estimated monthly rent of £1,057.03 and an estimated total monthly payment of £1,964.38. Service charge is modest at £78.03 per month and the lease is long at 990 years. Tenure is leasehold under the shared-ownership arrangement — buyers should budget for the ongoing rent component and annual service charge reviews.
At about 415 sq ft, the home is compact with one bathroom and a small overall footprint; rooms are functional rather than spacious. This property suits buyers prioritising location, affordability and low-maintenance new-build finish over generous internal space. The local area scores highly for safety, schools and broadband, making it practical for commuting and family life.
The build is new and requires minimal immediate upkeep, but buyers should confirm council tax banding and review the shared-ownership terms closely (rent review, staircasing options, and any restrictions). Viewing will clarify how the room sizes work day-to-day and whether the layout meets your needs.
3 bedroom house for sale in East Lane,
West Horsley,
KT24 6HQ, KT24 — £620,000 • 3 bed • 1 bath • 415 ft²
2 bedroom flat for sale in Burnt Common Lane,
Ripley,
GU236HD, GU23 — £116,375 • 2 bed • 1 bath • 544 ft²
3 bedroom end of terrace house for sale in Meadow Close, Westcott, Dorking, Surrey, RH4 — £303,000 • 3 bed • 1 bath
1 bedroom flat for sale in Egley Road,
Woking,
GU22 — £270,000 • 1 bed • 1 bath • 428 ft²
1 bedroom flat for sale in Egley Road,
Woking,
GU22 — £94,500 • 1 bed • 1 bath • 428 ft²
1 bedroom flat for sale in Egley Road,
Woking,
GU22 — £95,375 • 1 bed • 1 bath • 425 ft²


















