Large floor area with refurbishment potential near schools and transport.
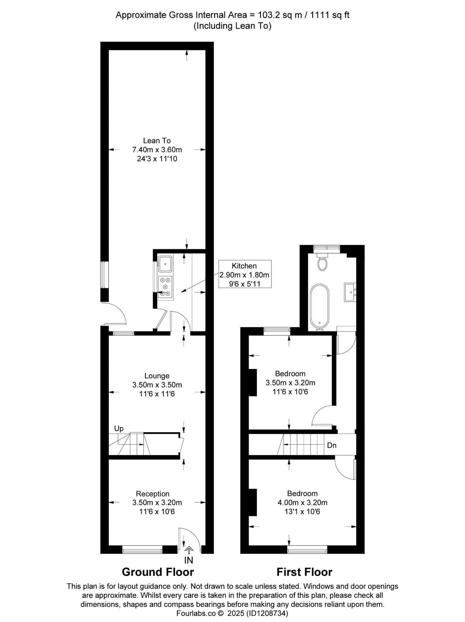
Freehold Victorian mid-terrace, two bedrooms
A freehold two-bedroom Victorian mid-terrace offering scope for improvement and solid investment potential. The property features gas central heating, double glazing and a fitted kitchen, with a practical layout across two floors and approximately 1,111 sq ft of overall space. Fast broadband and excellent mobile signal support modern living, and local bus routes, shops and primary schools are within easy reach.
The house requires cosmetic updating and some remedial work: signs of damp and mould in the entryway, dated fixtures, and solid brick walls likely without modern cavity insulation. EPC rating D58 reflects current energy performance and suggests improvement potential for anyone looking to reduce bills and raise value. Council tax is very low, and the freehold tenure simplifies ownership.
This property suits a buyer prepared to renovate — a first-time buyer wanting a long-term home or an investor targeting refurbishment and rental income. Note the area scores high for crime and is classified as very deprived; factor neighbourhood conditions and security measures into any plans. For buyers seeking straightforward, move-in-ready accommodation, the house will need work.
Practical positives include nearby outstanding and good primary schools, local amenities, and reliable transport links across Birmingham. With a sensible renovation budget, this Victorian terrace could deliver strong value uplift and a comfortable two-bedroom home in a well-connected location.
2 bedroom terraced house for sale in Woodgreen Road, Birmingham , B18 — £170,000 • 2 bed • 1 bath • 760 ft²
2 bedroom terraced house for sale in Northcote Road, Birmingham, West Midlands, B33 — £160,000 • 2 bed • 1 bath • 732 ft²
3 bedroom semi-detached house for sale in James Turner Street, Birmingham, B18 — £140,000 • 3 bed • 1 bath • 754 ft²
2 bedroom terraced house for sale in Heath Street, Birmingham, B18 — £190,000 • 2 bed • 2 bath
2 bedroom terraced house for sale in Millicent Place, Ombersley Road, Birmingham, B12 — £150,000 • 2 bed • 1 bath • 669 ft²
2 bedroom terraced house for sale in Winson Street, Birmingham, B18 — £190,000 • 2 bed • 1 bath • 646 ft²






































