High-yield investment with immediate income and town-centre footfall.
Income-producing freehold: £45,000 pa rent, 9.09% gross initial yield
Let on 10‑year FRI lease to Wraps & Wings franchise with personal guarantee
Tenant has break option at year 5 (six months’ notice) and RPI rent reviews
Deposit held £10,000; VAT not applicable
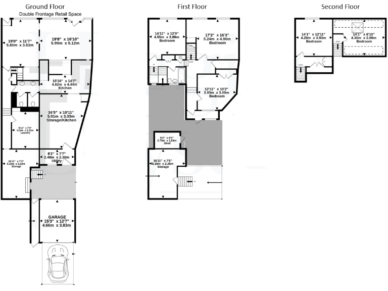
Large double-fronted restaurant with commercial kitchen and storage
Five-bedroom residential flat above; separate access and multiple storage areas
Garage and one parking space to rear; garage requires maintenance
Local concerns: very high crime rate and area deprivation indicators
An eye-catching mixed-use freehold in central Colchester, this three‑storey property combines a large ground-floor restaurant with a five‑bed residential flat above. The current tenant operates under a 10‑year FRI lease producing £45,000 pa, giving a strong gross initial yield of 9.09% and clear income from a town‑centre trade location two minutes’ walk from Colchester Town rail station.
The ground floor is a double‑fronted restaurant with bar, serving counter, commercial kitchen, storage rooms and rear access to a courtyard, garage and a single parking space. Upper floors provide five bedrooms, bathroom and multiple storage areas across the first and second floors — useful for rental or operator accommodation. VAT is not applicable.
This is a straightforward investment proposition for an investor seeking immediate income and future reversion potential. Note the tenant holds a break option in year five (minimum six months’ notice) and rent reviews are linked to RPI. A deposit of £10,000 is held against the lease.
Be frank about risks: the area registers high crime levels and general deprivation indicators, and the garage is shown as neglected and will need maintenance. The building footprint is constrained by neighbouring units; any substantial reconfiguration would require careful planning. Overall, the lot suits a buyer prioritising yield and town‑centre footfall, with an acceptance of local area challenges and medium‑term tenant risk.
High street retail property for sale in 31 St. Botolphs Street, Colchester, CO2 — £350,000 • 1 bed • 1 bath • 3210 ft²
High street retail property for sale in 1/1A Scheregate, Colchester, Essex, CO2 — £210,000 • 1 bed • 1 bath • 1325 ft²
5 bedroom apartment for sale in Vineyard Street, Colchester, Essex, CO2 — £725,000 • 5 bed • 5 bath
Restaurant for sale in Bar, Colchester, CO1 — £65,000 • 1 bed • 1 bath • 1920 ft²
Mixed use property for sale in 17/18/19 Eld Lane, CO1 — £330,000 • 1 bed • 1 bath • 2063 ft²
Out-of-town retail property for sale in 35 North Station Road, Colchester, Essex, CO1 — £450,000 • 1 bed • 1 bath • 2044 ft²


















