Spacious three-storey Victorian family home with garden and period features.
Four double bedrooms across three storeys
Bay-fronted living room open to dining room
Fitted kitchen, utility room and downstairs cloakroom
Enclosed rear garden with patio and lawn
Solid brick walls; no confirmed wall insulation
Very high local crime rate; area rated very deprived
Small plot; mid-terrace, limited outdoor space
Freehold, no flood risk, affordable council tax
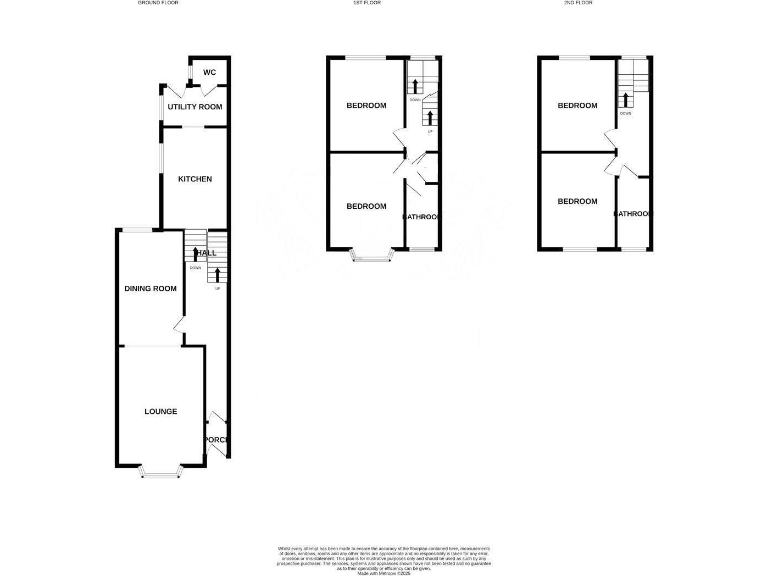
This spacious four-bedroom Victorian mid-terrace is arranged over three storeys and suits a growing family seeking period character close to St Leonards’s amenities. High ceilings, bay windows and original mouldings give the principal living rooms an airy, classic feel while an open-plan lounge-to-dining layout creates a sociable ground-floor space.
The fitted kitchen leads through to a practical utility and downstairs cloakroom, with a patio directly off the kitchen opening onto an enclosed lawned garden — a useful outside space for children and casual al-fresco dining. Two double bedrooms and a bathroom sit on the first floor, with two further double bedrooms and a second bathroom on the upper floor, giving flexibility for bedrooms, home office or guest space.
Buyers should note material considerations: the property is of solid brick construction with no confirmed wall insulation, and some energy improvements may be needed. The area is classified as very deprived with very high local crime rates—important factors for buyer due diligence. The plot is small and the house sits on a mid-terrace, so outdoor space is modest compared with detached alternatives.
Overall this is a well-presented family home with strong period features, convenient access to shops, transport and parks, and clear potential for energy and security upgrades. It will appeal to families wanting spacious rooms and character, and to buyers willing to invest in insulation and targeted improvements.
4 bedroom terraced house for sale in Milward Road, Hastings, TN34 — £500,000 • 4 bed • 2 bath • 1347 ft²
4 bedroom terraced house for sale in Mount Pleasant Crescent, Hastings, TN34 — £440,000 • 4 bed • 2 bath • 1389 ft²
5 bedroom terraced house for sale in Wellington Road, Hastings, TN34 — £650,000 • 5 bed • 3 bath • 2541 ft²
3 bedroom terraced house for sale in Manor Road, Hastings, TN34 — £325,000 • 3 bed • 1 bath • 980 ft²
4 bedroom terraced house for sale in Milward Road, Hastings, TN34 — £425,000 • 4 bed • 1 bath • 1572 ft²
4 bedroom terraced house for sale in Horntye Road, St. Leonards-On-Sea, TN37 — £400,000 • 4 bed • 1 bath • 1165 ft²


































































































