EC2A 3HZ - Bar / nightclub for sale in Great Eastern Street, London, E…

View on Property Piper

Bar / nightclub for sale in Great Eastern Street, London, EC2A

Summary - Great Eastern Street, London, EC2A EC2A 3HZ

1 bed 1 bath Bar / Nightclub

**Standout Features:**
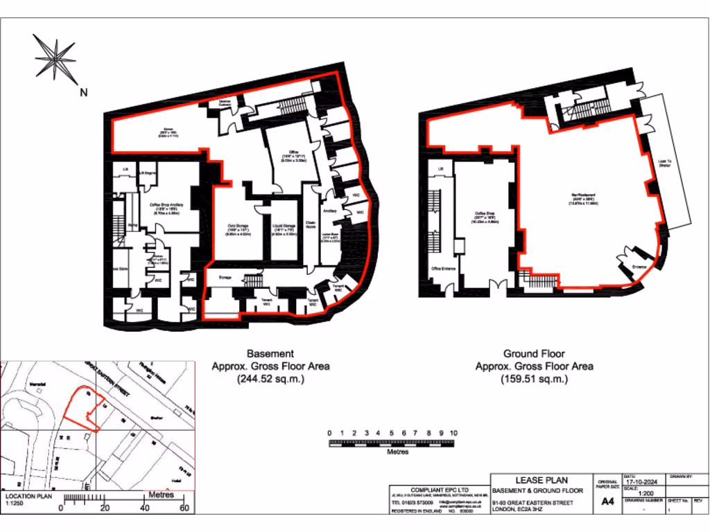
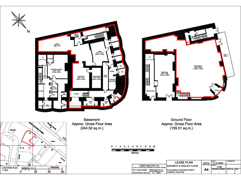
- 4am license with a 300-capacity.
- Prime location in the heart of Shoreditch, just a 1-minute walk from Old Street Station.
- Free of tie lease with a terrace for outdoor dining.
- Large industrial-style space with high ceilings and exposed brick.

**Concerns:**
- 12 years remaining on the lease, potential mortgage challenges for buyers.
- Located in an area with very high crime rates; buyer discretion advised.

**Summary:**
Invest in a prime bar/nightclub opportunity in the vibrant, multicultural neighborhood of Shoreditch, just steps from Old Street Station. This spacious industrial-style venue features a 4am license and capacity for 300 patrons, making it ideal for social gatherings, events, or a bustling nightlife scene. The open layout, adorned with rustic fixtures and high ceilings, allows for a unique ambiance, while the outdoor terrace provides a lovely venue for alfresco dining.

While there are concerns regarding the remaining 12 years on the lease—potentially complicating mortgage options for buyers—this property offers a lucrative investment in a high-traffic area known for its lively nightlife and urban charm. Buyers should take note of the elevated crime rate in the area, which may affect their decision. With the right vision and investment, this location holds immense potential for future growth and success. Act now—opportunities like this in Shoreditch don’t last long!

Property Details

Brochure Descriptions

Image Descriptions

Textual Property Features

Detected Visual Features

Nearby Schools

Nearest Bars And Restaurants

,,,,}

Nearest General Shops

,,}

Nearest Grocery shops

,,}

Nearest Supermarkets

,,}

Nearest Religious buildings

,,}

Nearest Medical buildings

,,,}

Nearest Airports

,}

Nearest Leisure Facilities

,,,,}

Nearest Tourist attractions

,,}

Nearest Train stations

,,,,}

Nearest Bus stations and stops

,,,,}

Nearest Hotels

,,}

Tags

Local Market Stats

AirBnB Data

Similar Properties

Meta

High Res Images

Compatible Images

Low res Images

Thumbnails

Raw Images

High Res Floorplan Images

Compatible Floorplan Images

Low res Floorplan Images

FloorplanImages Thumbnail

Raw Floorplan Images