**Standout Features:**
- Stunning Grade II Listed property with a rich history dating back to the early 1600s
- Empathetically converted 17th-century coach house
- Exposed timbers, original brickwork, and soaring vaulted ceilings
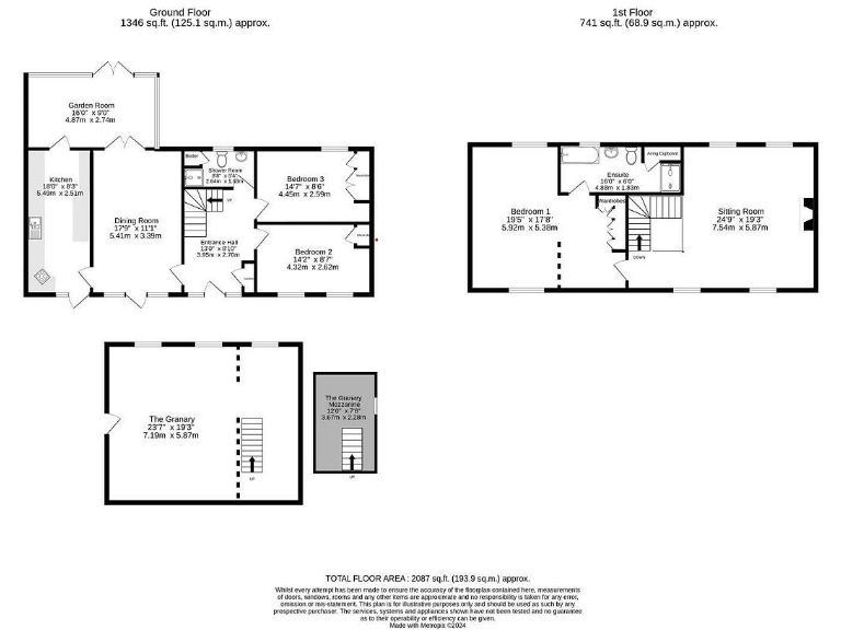
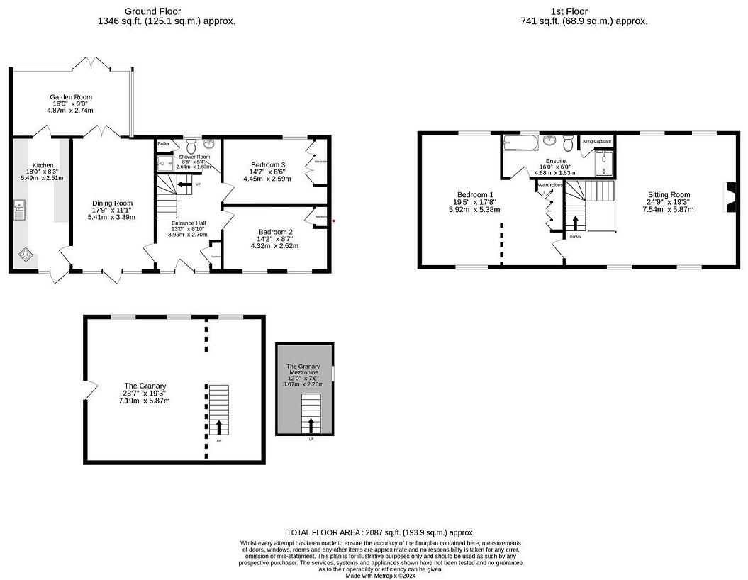
- Spacious total area of 2,087 square feet
- En-suite master bedroom with picturesque views and dressing area
- Detached Granary with conversion potential for office or studio
- Beautifully landscaped gardens with private, secluded areas
- Gated entrance and ample parking including a double garage
- Chain-free sale with low local crime rate
**Summary:**
Discover the enchanting Coach House, a Grade II Listed home showcasing a seamless blend of historic charm and modern comfort. This spacious residence offers three generous bedrooms, including a remarkable master suite with an en-suite bathroom, along with multiple inviting living areas that open onto a picturesque garden room. The unique exposed timber beams and original brickwork illustrate the property's storied past while creating an inviting atmosphere for relaxed family living.
The detached Granary enhances the property's versatility, presenting an excellent opportunity for conversion into a home office or studio, subject to planning consents. Nestled in the tranquil village of Waterford, enjoy beautiful countryside walks and easy access to the vibrant town of Hertford, complete with shops, eateries, and renowned schools. With its gated entrance, beautifully landscaped gardens, and ample parking, this special property offers a peaceful retreat, inviting you to experience the serenity of rural life. Don't miss this unique opportunity—properties of this caliber won't be available for long!
5 bedroom detached house for sale in The Coach House, Ware Road, Widford, SG12 — £1,250,000 • 5 bed • 3 bath • 2362 ft²
3 bedroom detached house for sale in Hassobury, Farnham, Bishop's Stortford, Essex, CM23 — £850,000 • 3 bed • 2 bath • 2000 ft²
3 bedroom end of terrace house for sale in Mangrove Lane, Hertford, SG13 — £589,000 • 3 bed • 2 bath • 1005 ft²
5 bedroom detached house for sale in Lower Hatfield Road, Bayfordbury, Hertford, SG13 — £1,875,000 • 5 bed • 5 bath • 8383 ft²
4 bedroom farm house for sale in Latchford, Standon, Herts, SG11 — £1,350,000 • 4 bed • 3 bath • 2200 ft²
5 bedroom detached house for sale in 'The Old Barn' Thundridge, SG12 — £1,850,000 • 5 bed • 5 bath • 6500 ft²






































































































































