Characterful Chelsea flat with private garden and flexible three-room layout, close to Fulham Road..
Rare garden apartment with private winter garden and large private garden
Open-plan kitchen/living room ideal for modern living and entertaining
Separate study usable as a third bedroom or home office
Large principal bedroom and second double bedroom
Contemporary four-piece bathroom with freestanding bathtub
Leasehold with 73 years remaining — lenders may refuse mortgages
Service charge c. £2,757 pa and above-average council tax
Solid brick construction with assumed no insulation — possible energy costs
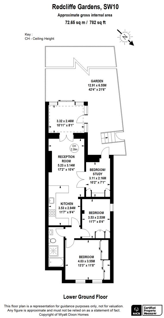
Set on the southern end of Redcliffe Gardens, this rare garden apartment combines Victorian character with contemporary living. The open-plan kitchen and living room and a winter garden that leads to a large private garden make the flat feel unusually spacious for central Chelsea. A separate study offers flexible use as a third bedroom for a small family or home office.
The principal and second double bedrooms sit alongside a stylish four-piece bathroom with a freestanding bathtub. Period features such as high ceilings and sash-style windows remain, while secondary glazing and modern heating provide day-to-day comfort. The private garden includes bench seating, an outdoor dining area and hot tub space, giving a true outdoor living extension rarely found at this price in SW10.
Buyers should note material constraints: the flat is leasehold with 73 years remaining — mortgage lenders may refuse or require reduced loan terms. The property is relatively small overall (782 sq ft) and the building’s solid brick walls are assumed to have no insulation, which may affect running costs and future refurbishment scope. Service charge and council tax levels are notable ongoing costs.
This apartment is best for those seeking a characterful Chelsea base with private outdoor space: families who value nearby outstanding schools, professionals working locally, or buyers who prioritise location and garden living over large internal floor area. It offers clear potential to personalise and improve insulation or layout, subject to lease constraints.
2 bedroom apartment for sale in Redcliffe Gardens, Chelsea, London, SW10 — £925,000 • 2 bed • 2 bath • 1046 ft²
3 bedroom flat for sale in Redcliffe Gardens, London, SW10 — £1,100,000 • 3 bed • 2 bath • 775 ft²
1 bedroom flat for sale in Redcliffe Gardens, London, SW10 — £800,000 • 1 bed • 1 bath • 844 ft²
1 bedroom flat for sale in Redcliffe Gardens, London, SW10 — £595,000 • 1 bed • 1 bath • 538 ft²
2 bedroom apartment for sale in Redcliffe Road, Chelsea, SW10 — £1,750,000 • 2 bed • 2 bath • 1076 ft²
2 bedroom apartment for sale in Cathcart Road, London, SW10 — £1,600,000 • 2 bed • 2 bath • 964 ft²






















































