DE24 9AZ - 2 bedroom terraced house for sale in Whittington Street, Al…

View on Property Piper

2 bedroom terraced house for sale in Whittington Street, Allenton, DE24

Summary - 67, Whittington Street, Allenton, DERBY DE24 9AZ

2 bed 1 bath Terraced

**Key Features:**
- Two-bedroom mid-terraced home, freehold
- Located in DE24, Council Tax Band A and EPC Rating C
- No upward chain, ideal for quick ownership
- Low-maintenance rear garden with storage shed
- On-street parking
- Proximity to Rolls Royce, local amenities, and schools
- Double glazing and gas central heating in place
- Requires some renovation; no mold or damp issues noted

This charming two-bedroom mid-terraced home is a fantastic opportunity, especially for first-time buyers or investors looking for rental potential. Featuring neutral décor throughout, the spacious lounge welcomes you, leading to a fitted kitchen and family bathroom. Both double bedrooms offer ample space, with the second bedroom providing built-in storage. The property boasts double glazing and a reliable gas central heating system, ensuring comfort year-round.

The low-maintenance garden at the rear is perfect for outdoor enjoyment or as a blank canvas for garden enthusiasts. On-street parking adds convenience, while the location near Allenton’s amenities, schools, and excellent transport links ensures you’re never far from essential services.

While the area has a higher crime rate and is classified as deprived, this property presents an enticing opportunity to invest in a home with future potential. Take advantage of the no upward chain feature; arrange a viewing today and explore the possibilities within this space!

Property Details

Image Descriptions

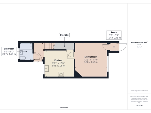
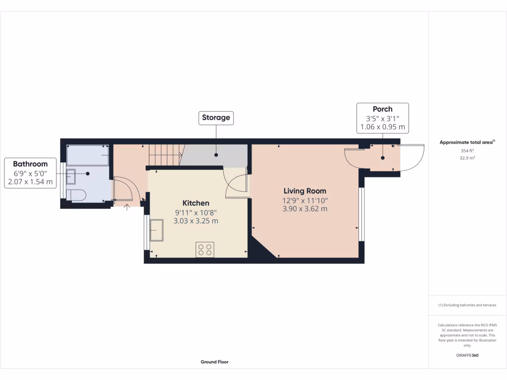
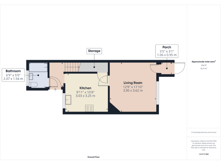
Floorplan Description

Rooms

Textual Property Features

Detected Visual Features

EPC Details

Nearby Schools

Nearest Bars And Restaurants

,,,,}

Nearest General Shops

,,}

Nearest Grocery shops

,,}

Nearest Supermarkets

,,}

Nearest Religious buildings

,,}

Nearest Medical buildings

,,,}

Nearest Airports

}

Nearest Leisure Facilities

,,,,}

Nearest Tourist attractions

,,}

Nearest Train stations

,,,,}

Nearest Bus stations and stops

,,,,}

Nearest Hotels

,,}

Tags

Local Market Stats

AirBnB Data

Similar Properties

Meta

High Res Images

Compatible Images

Low res Images

Thumbnails

Raw Images

High Res Floorplan Images

Compatible Floorplan Images

Low res Floorplan Images

FloorplanImages Thumbnail

Raw Floorplan Images