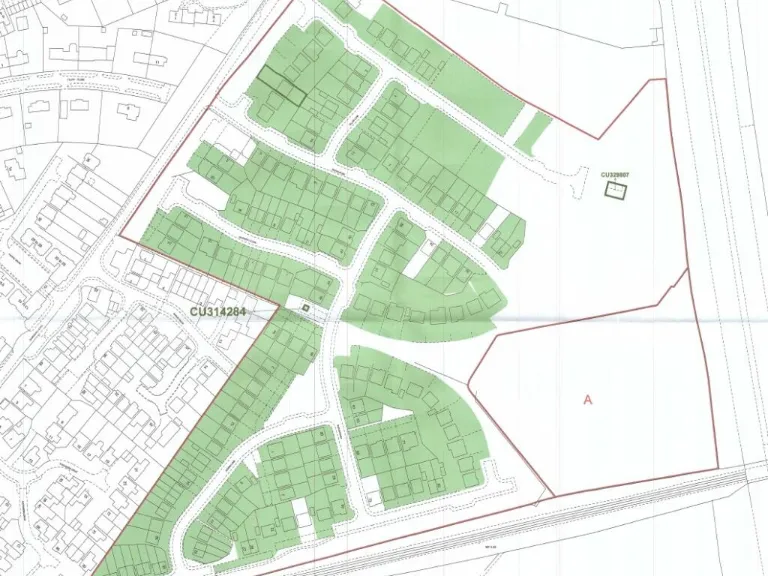
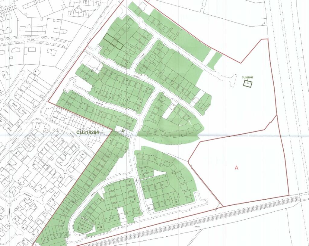
Large outer-Carlisle plot with local plan allocation and motorway access.
Approximately 4.1 acres of development land off Rufus Road (east Carlisle)
Allocated U18 for up to 150 residential units in Cumberland local plan
Previously undetermined Taylor Wimpey 15‑unit application now disposed
Sold by public auction; guide price £75,000–£100,000
Tenure unspecified — check legal pack; admin fee applies on exchange
No flood risk; excellent mobile signal and fast broadband reported
Adjacent Taylor Wimpey phase delivered — infrastructure precedent nearby
Buyer must secure planning consent and allow for legal/disbursement costs
A substantial 4.1 acre development opportunity on the easterly outskirts of Carlisle with direct access to the M6 (J43). The site is allocated for residential development (U18) in the Cumberland Council local plan for 150 units and sits adjacent to an existing Taylor Wimpey phase of homes, providing clear context and infrastructure precedent for future proposals.
The site will be sold at public auction with a guide price of £75,000–£100,000. A previous Taylor Wimpey planning submission for 15 units was not determined and has been finally disposed; interested parties must make their own enquiries with Cumberland Council regarding deliverable schemes and any constraints. Tenure is not specified in the legal pack and an administration fee (1.2% inc VAT, minimum £1,500) is payable on exchange.
Practical advantages include excellent mobile signal, fast broadband potential, no identified flood risk, and proximity to primary and secondary schools. Drawbacks to factor into any offer are the auction sale method, unspecified tenure, the need for a fresh, fully determined planning consent for new build beyond the local plan allocation, and associated legal/disbursement costs detailed in the legal pack.
This site will suit developers or investor-builders able to progress planning and infrastructure work. It offers strong potential given the adjacent completed phase and local plan allocation, but it is a plot requiring proactive planning, legal due diligence, and likely initial site-investment prior to construction.
Land for sale in Palmer Road, Carlisle, Cumbria, CA2 — £100,000 • 1 bed • 1 bath • 13068 ft²
Land for sale in Gleneagles Drive, Carlisle, Cumbria, CA3 — £30,000 • 1 bed • 1 bath • 8712 ft²
Commercial development for sale in Land at Gilford Park, Carlisle, CA1 3AF, CA1 — £220,000 • 1 bed • 1 bath
2 bedroom cottage for sale in Edenholme, Park Broom, Carlisle, Cumbria CA6 4QH, CA6 — £75,000 • 2 bed • 1 bath
Commercial development for sale in Residential Development Land, High Hesket Business Park, High Hesket, Carlisle, CA4 0BW, CA4 — £1,350,000 • 1 bed • 1 bath
Land for sale in Station Road, CA5 7LT, CA5 — £25,000 • 1 bed • 1 bath • 3965 ft²










