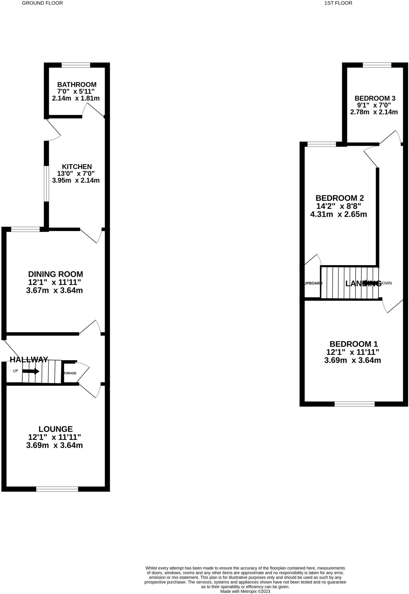
Chain-free three-bed semi with large garden and strong refurbishment potential..
- Three bedrooms with two reception rooms and practical layout
- Large private rear garden with established borders and outbuilding
- Block-paved driveway providing off-street parking
- Offered chain free; freehold tenure
- Needs full cosmetic renovation and modernisation throughout
- Single bathroom only; may be restrictive for larger households
- Small overall size ~751 sq ft; modest room proportions
- Walking distance to Ilkeston centre with good transport links
A chain-free, three-bedroom semi in Ilkeston offering clear scope for improvement and value uplift. The Edwardian shell retains period character externally while interiors are dated and in need of renovation — ideal for a first-time buyer or investor prepared to refurbish. The layout comprises two reception rooms, a kitchen off the dining room and a single bathroom; ceiling heights are standard and rooms are practical but require cosmetic modernisation.
Stand-out practical assets include a large, private rear garden, off-street parking via a block-paved driveway, and useful outbuilding storage. The house sits within walking distance of Ilkeston town centre with frequent bus and rail links, good local broadband and excellent mobile signal, making it convenient for commuting and everyday needs.
This freehold property is small in overall size (around 751 sq ft) so buyers should expect modest room proportions. Renovation will be needed to modernise finishes, update services and personalise the accommodation — a straightforward project for a trades-skilled purchaser or investor seeking rental or resale potential. Note: single bathroom and dated fixtures may limit immediate family use without refurbishment.
3 bedroom semi-detached house for sale in Heanor Road, Ilkeston, DE7 — £200,000 • 3 bed • 1 bath • 903 ft²
4 bedroom semi-detached house for sale in Nursery Hollow, Ilkeston, DE7 — £250,000 • 4 bed • 3 bath • 1478 ft²
3 bedroom end of terrace house for sale in Boweswell Road, Ilkeston, Derbyshire, DE7 — £160,000 • 3 bed • 1 bath • 939 ft²
3 bedroom semi-detached house for sale in Bunting Close, Ilkeston, DE7 — £170,000 • 3 bed • 1 bath • 652 ft²
3 bedroom semi-detached house for sale in Green Lane, Ilkeston, DE7 — £200,000 • 3 bed • 1 bath • 1006 ft²
3 bedroom end of terrace house for sale in Hallam Fields Road, Ilkeston, DE7 — £149,950 • 3 bed • 1 bath • 970 ft²










































