Half-acre consented plot for a four-bedroom barn-style family home, close to Newquay amenities.
Full planning granted (PA22/07377) for contemporary four-bedroom barn-style house
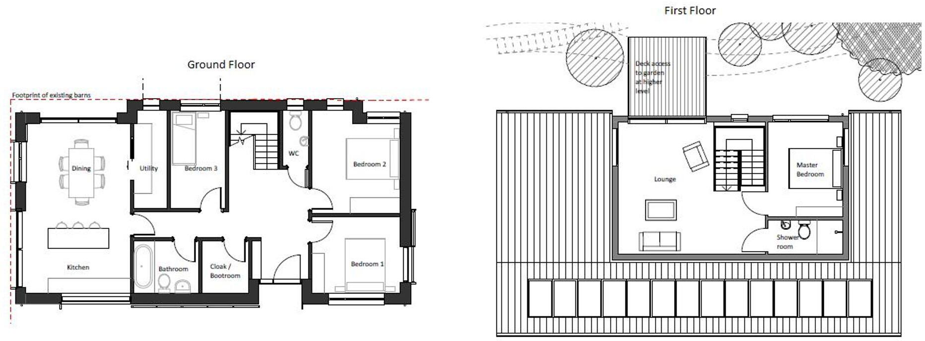
This half-acre building plot at Rialton View comes with full planning permission (PA22/07377) for a contemporary four-bedroom barn-style home. The consented design proposes a large open-plan kitchen/diner, ground-floor bedrooms, first-floor master suite and private rear gardens extending into paddock-like space — a straightforward starting point for a family self-build or developer project.
The site sits on the semi-rural outskirts of Newquay, close to St Columb Minor and within walking distance of local shops and primary schools. The location offers countryside views and easy access to coastal amenities in Newquay while retaining a peaceful, low-crime hamlet setting — attractive for families seeking space and calm.
Buyers should note material practicalities: main services are to be confirmed and tenure details are unspecified. The plot price reflects the need to connect utilities and complete construction; purchasers should budget for site works and building costs. The site is exempt from CIL charges, which reduces a common planning cost.
This is a rare opportunity for someone wanting a ready-to-build plot with approved plans in a desirable Cornish location. It will particularly suit a family, self-builder or small developer comfortable managing utility connections and construction to realise the design shown.
Land for sale in Rialton View, Newquay, TR8 — £180,000 • 4 bed • 2 bath
Land for sale in Tregaswith Farmhouse, Tregaswith, Newquay, Cornwall, TR8 — £300,000 • 1 bed • 1 bath
Land for sale in Pargolla Road, Newquay, TR7 — £77,500 • 1 bed • 1 bath
Land for sale in Westeros, St Stephen, PL26 — £200,000 • 1 bed • 1 bath
Plot for sale in Building Plot, St. Mawgan, TR8 — £350,000 • 1 bed • 1 bath
4 bedroom detached house for sale in Station Road, Perranporth, TR6 — £250,000 • 4 bed • 1 bath






































































