Generous garden, large parking area and conservatory for extra living space.
Three bedrooms with family bathroom and built-in bedroom storage
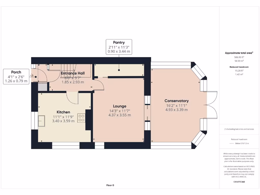
Set on a generous plot, this three-bedroom home offers practical family accommodation with useful outdoor space and ample parking. The ground floor includes a bright lounge, a sizeable kitchen with pantry, and a tiled conservatory that extends living space to the rear garden. Upstairs are three bedrooms and a fully tiled bathroom with heated towel rail and rainfall shower.
The property benefits from double glazing and a Worcester combi boiler with mains gas central heating, helping keep running costs reasonable. The plot is a standout feature — flagged and lawned gardens plus a large gravelled side area that provides off-street parking for several vehicles. Council tax is described as cheap.
There is scope to modernise the kitchen and some internal finishes to unlock additional value; the kitchen and some fittings date from the late 20th century. The house is small overall (circa 586 sq ft) and sits in a deprived local area with above-average crime statistics and a predominance of rented terraces, which may concern some buyers. No flooding risk was reported.
This home suits a family or buyer seeking a well-located property with parking and garden space, who is prepared to update cosmetic and kitchen elements to personalise and potentially increase value. Fast broadband and excellent mobile signal are practical advantages for modern living.
3 bedroom semi-detached house for sale in Milnbank Avenue, Buxton, SK17 — £229,995 • 3 bed • 1 bath • 722 ft²
3 bedroom semi-detached house for sale in Berwick Road, Buxton, SK17 — £279,950 • 3 bed • 1 bath • 780 ft²
3 bedroom terraced house for sale in Alport Avenue, Buxton, SK17 — £199,950 • 3 bed • 1 bath • 413 ft²
3 bedroom semi-detached house for sale in Ladycroft Avenue, Buxton, SK17 — £239,995 • 3 bed • 1 bath • 743 ft²
3 bedroom semi-detached house for sale in Windsor Park Road, Buxton, SK17 — £275,000 • 3 bed • 1 bath • 848 ft²
4 bedroom terraced house for sale in Tongue Lane, Buxton, SK17 — £269,995 • 4 bed • 2 bath • 1257 ft²


































































































