Spacious family living with loft potential close to parks, schools and town centre.
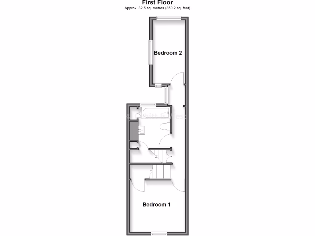
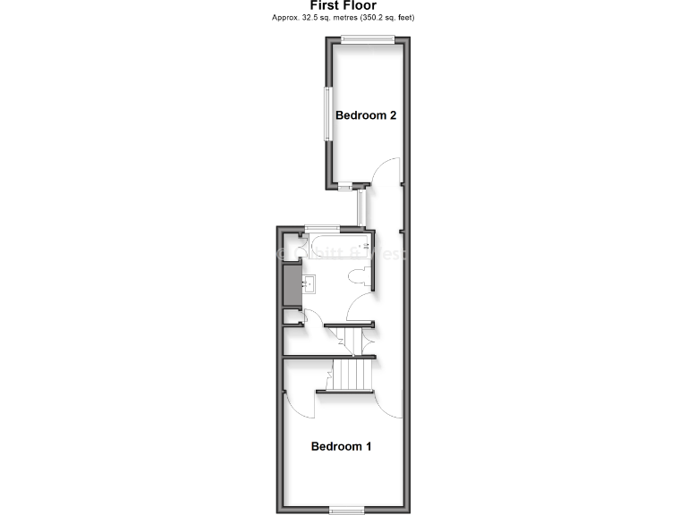
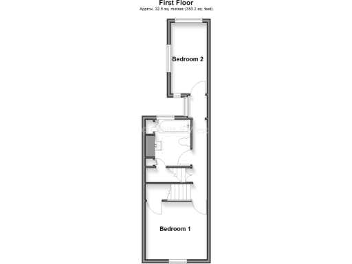
2 double bedrooms plus loft room currently used as a third bedroom
Potential to enlarge/convert loft to bedroom 3 and bathroom (subject to consents)
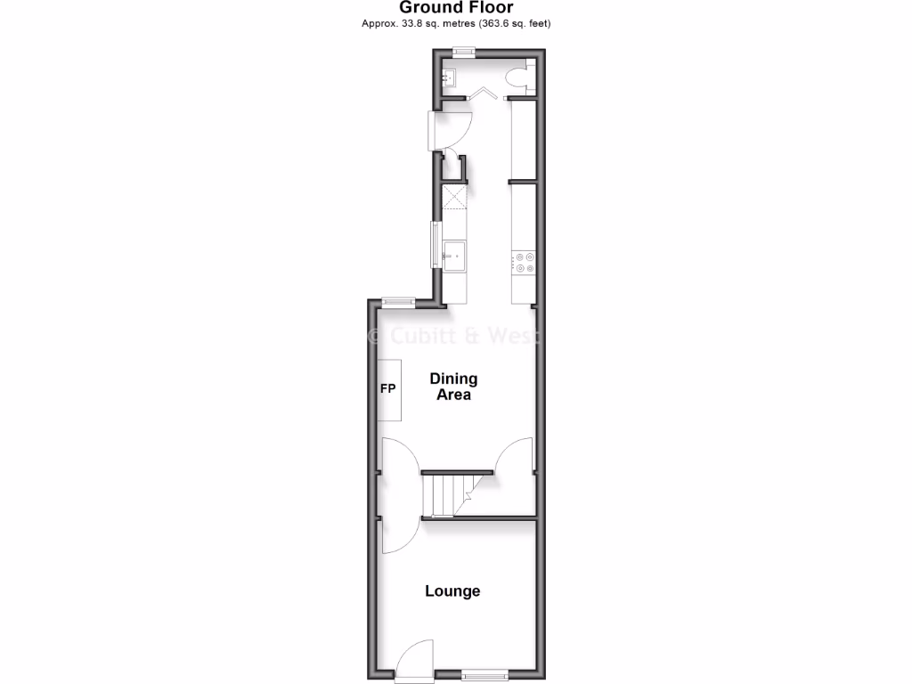
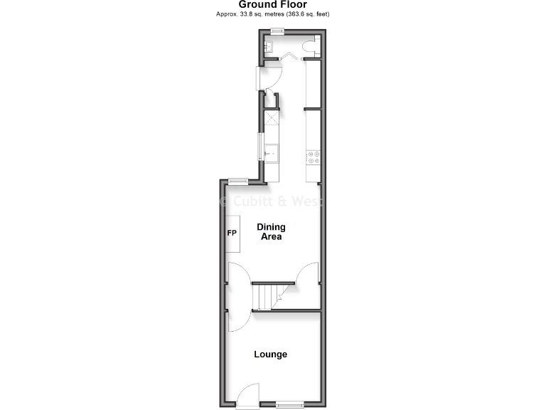
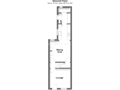
Separate dining room with feature wood burner; lounge with character details
Fitted kitchen with appliances, plus separate utility and cloakroom
Front and rear gardens, terrace, small plot and modest studio/office
Double glazing and mains gas heating with boiler and radiators
Average overall size (approx. 739 sq ft); compact kitchen and eaves storage
Short walk to good schools, Priory Park, town centre; easy motorway/airport access
Set on a popular New North Road street in Reigate, this two-bedroom end-terrace offers comfortable living with clear scope to extend. The house currently provides a lounge, separate dining room with a feature wood burner, fitted kitchen with appliances, utility and cloakroom — practical spaces for everyday family life.
Upstairs are two double bedrooms and a generously fitted bathroom with a rolled-top bath and shower. A loft room is currently used as a third bedroom; there is potential to enlarge and fully convert this space into a proper third bedroom and additional bathroom subject to planning consent.
Outside there are front and rear gardens with a terrace and lawn, plus a separate studio/office — useful for working from home or storage. The property benefits from double glazing, gas central heating and easy walking access to good schools, Priory Park, local shops and Reigate town centre. Transport links provide straightforward access to Gatwick and the M25.
Buyers should note the plot is relatively small and the overall house size is average for the area. Any loft enlargement or conversion will require planning and building regulation approvals. The studio is modest in size and some rooms — notably the kitchen — are compact compared with living and dining areas.
2 bedroom terraced house for sale in New North Road, Reigate, Surrey, RH2 — £320,500 • 2 bed • 1 bath • 732 ft²
2 bedroom semi-detached house for sale in Priory Road, Reigate, Surrey, RH2 — £450,000 • 2 bed • 1 bath • 1002 ft²
2 bedroom semi-detached house for sale in Sandcross Lane, Reigate, Surrey, RH2 — £490,000 • 2 bed • 1 bath • 862 ft²
3 bedroom semi-detached house for sale in Ashdown Road, Reigate, Surrey, RH2 — £475,000 • 3 bed • 1 bath • 883 ft²
3 bedroom semi-detached house for sale in Rushetts Road, Reigate, Surrey, RH2 — £465,000 • 3 bed • 1 bath • 692 ft²
3 bedroom semi-detached house for sale in Parkgate Road, Reigate, Surrey, RH2 — £650,000 • 3 bed • 1 bath • 1586 ft²






























































































