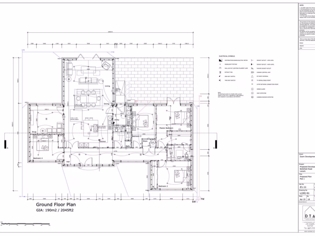
Spacious single‑storey 4-bed new build with generous open-plan living and private garden..
- Newly built detached bungalow, circa 2,045 sqft single-storey layout
- Large open-plan lounge, kitchen and dining with wide patio doors
- Master bedroom with walk-in dressing room and en suite shower
- Separate utility, snug/home office and flexible fourth bedroom
- Freehold tenure, no identified flood risk, fast broadband available
- Small development of five homes; semi-rural setting with green outlooks
- Average mobile signal; area classified as very deprived (affects resale)
- Modest-to-medium rear garden; landscaping/personalisation likely required
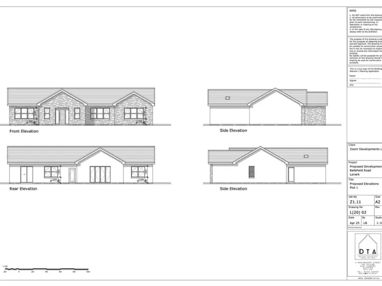
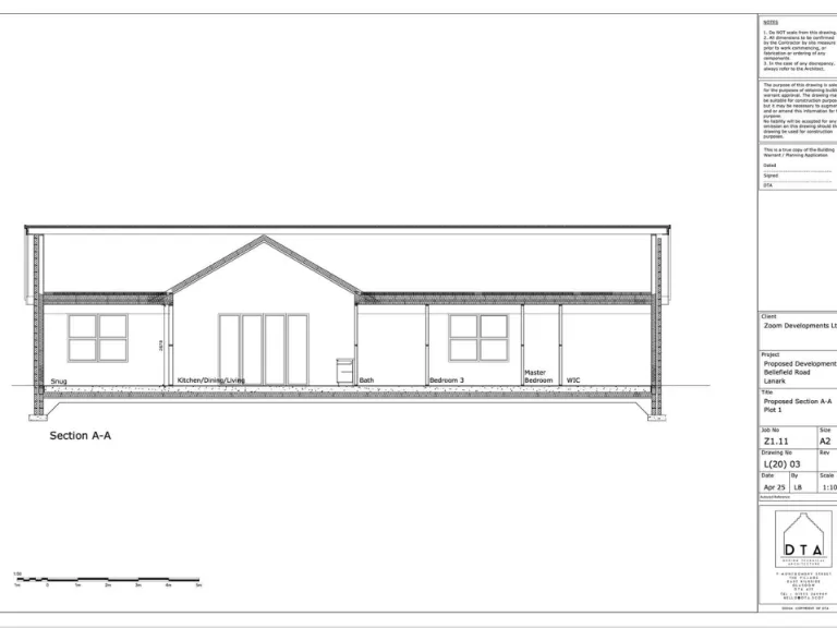
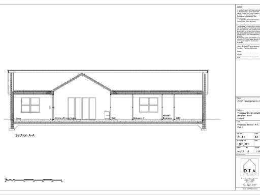
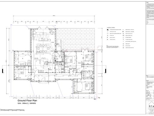
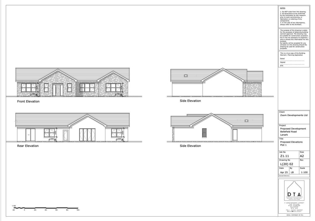
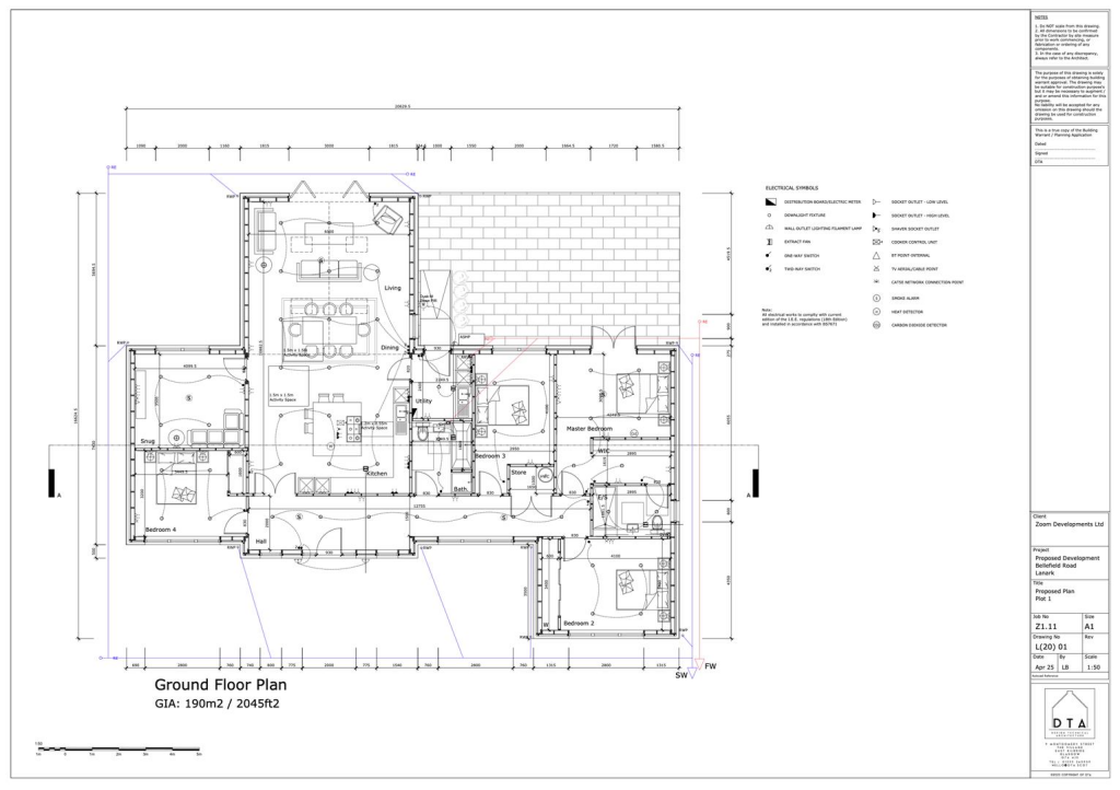
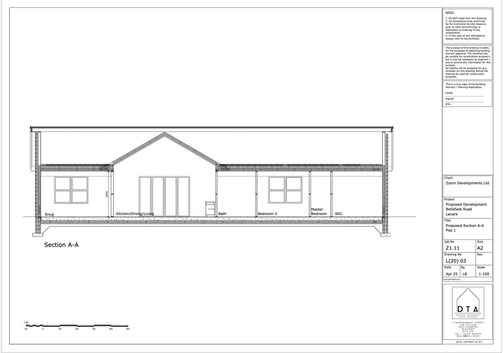
Plot 1 at Bellefield Road is a contemporary, single-storey detached bungalow offering generous, accessible living across roughly 2,045 sqft. The home features a commanding open-plan lounge with kitchen and dining area, a separate utility, a snug/home office and four sizeable bedrooms — the master includes a walk-in dressing room and en suite shower room. Wide patio/bi-fold doors link the principal living space to a private rear garden, creating a strong indoor–outdoor flow for entertaining and everyday family life.
Built as part of a small collection of five bungalows on the edge of Lanark, the property combines light stone facing, white render and a dark pitched roof for good kerb appeal. The single-storey layout suits downsizers or families seeking level living with clear zoning between living and sleeping wings. Practical benefits include freehold tenure, fast broadband and no identified flood risk.
There are a few material points to note: the development sits in an area classified as very deprived, which may affect long-term resale considerations and local services. Mobile signal is described as average. The plot offers a modest-to-medium garden rather than extensive grounds. Buyers should also allow for landscaping and any personalization works typical of new-build finishes.
Overall, this newly built, well-zoned bungalow offers a spacious, modern alternative to multi-storey homes — particularly appealing to buyers prioritising single-level living, generous entertaining space and contemporary specification in a semi-rural setting close to Lanark.
4 bedroom detached bungalow for sale in Plot 4, Bellfield Road, Lanark, ML11 — £550,000 • 4 bed • 3 bath • 2045 ft²
4 bedroom detached bungalow for sale in Plot 1, Bellfield Road, Lanark, ML11 — £550,000 • 4 bed • 3 bath • 2045 ft²
4 bedroom detached bungalow for sale in Plot 5, Bellfield Road, Lanark, ML11 — £550,000 • 4 bed • 3 bath • 2050 ft²
4 bedroom detached bungalow for sale in Plot 3, Bellfield Road, Lanark, ML11 — £550,000 • 4 bed • 3 bath • 2045 ft²
4 bedroom detached bungalow for sale in Plot 2, Bellfield Road, Lanark, ML11 — £550,000 • 4 bed • 3 bath • 2045 ft²
4 bedroom detached bungalow for sale in Cleghorn, Lanark, ML11 — £575,000 • 4 bed • 2 bath • 2034 ft²


































