Stylish two-double-bedroom Victorian conversion with parking and a long lease.
Long lease — approximately 151 years remaining
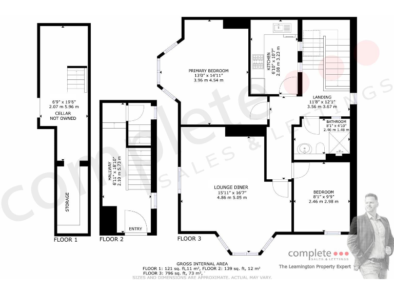
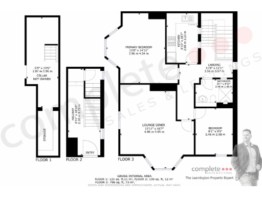
Set within a handsome Victorian conversion on the corner of Radford Road and St Mary’s Road, this newly renovated first-floor apartment balances period character with modern convenience. The flat offers two double bedrooms, a bay-fronted lounge/diner with original sash detail (secondary glazing installed), and a contemporary fitted kitchen and shower room. New flooring, recent decoration and a six‑month‑old gas boiler reduce immediate maintenance work.
Practical features include an allocated off‑street parking space, a long lease of approximately 151 years and no onward chain — attractive to first‑time buyers or professionals seeking a move‑in ready home close to Leamington train station, town centre and local parks. The building provides communal cellar and loft access, useful for extra storage though these spaces are not owned by the apartment.
Buyers should note this is a leasehold property. There is a low service charge (around £600) and an agreed £50 per apartment maintenance contribution; potential purchasers should confirm the management arrangements and costs. The building’s solid brick construction likely means limited wall insulation unless upgraded — secondary glazing and a new boiler help with thermal performance but further insulation work could improve energy efficiency.
Overall this apartment offers a blend of period appeal and contemporary finish in a sought‑after, well‑connected area of Leamington Spa. It suits those prioritising location, a long lease and immediate occupancy, while buyers wanting fully owned cellar/loft space or significant wall‑insulation improvements should factor that into their plans.
2 bedroom apartment for sale in Leam Terrace, Leamington Spa, Warwickshire, CV31 — £230,000 • 2 bed • 1 bath • 844 ft²
2 bedroom apartment for sale in St. Marys Road, Leamington Spa, CV31 — £210,000 • 2 bed • 1 bath • 786 ft²
2 bedroom apartment for sale in Willes Road, Leamington Spa, CV31 — £225,000 • 2 bed • 1 bath • 632 ft²
2 bedroom apartment for sale in Willes Road, Leamington Spa, CV31 — £230,000 • 2 bed • 1 bath • 552 ft²
2 bedroom apartment for sale in Northumberland Road, Leamington Spa, CV32 — £350,000 • 2 bed • 2 bath • 909 ft²
1 bedroom ground floor flat for sale in Russell Terrace, Leamington Spa, CV31 — £200,000 • 1 bed • 1 bath • 528 ft²










































































































































