Well-presented 3-bed family home with large kitchen-diner and driveway parking.
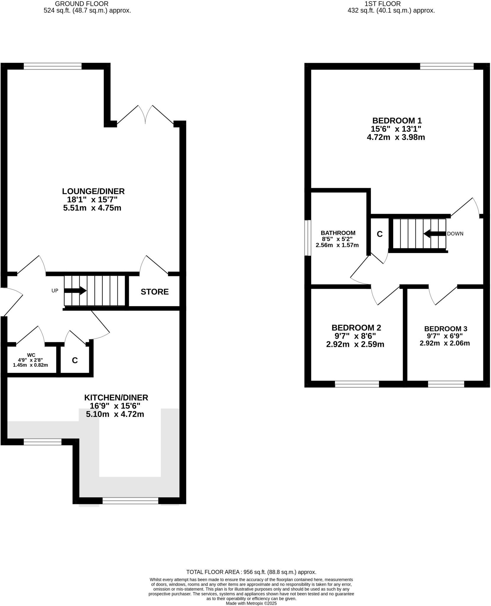
Large gloss kitchen-diner with appliances and dining space
Spacious rear sitting room with double doors to garden
Two doubles plus large single; master can take an ensuite
Downstairs guest WC; separate traditional family bathroom
Block-paved driveway for off-street parking
Enclosed, well-tended rear garden with lawn and seating area
Average overall size (around 956 sq ft); small plot
Freehold; no flood risk; council tax described as affordable
This well-presented three-bedroom semi-detached home in central Farsley offers practical family living across around 956 sq ft. The large gloss kitchen-diner at the front and a spacious rear sitting room that opens onto the enclosed garden create a comfortable day-to-day layout for family life and entertaining.
Upstairs there are two double bedrooms and a large single; the master bedroom has scope to add an ensuite if required. The property already benefits from a downstairs guest WC and a traditional three-piece bathroom with a freestanding bath. Off-street driveway parking and an enclosed, well-kept rear garden with lawn and seating area add useful outdoor space.
Located in a popular, well-connected part of Farsley with good schools nearby and frequent bus and rail links into Leeds and Bradford, the house suits families seeking convenience and comfort. The plot is modest, so garden space is manageable but not expansive. Overall the home is ready to live in with potential for modest modernisation such as an ensuite addition to increase long-term value.
 3 bedroom semi-detached house for sale in Sycamore Walk, Farsley, Pudsey, West Yorkshire, LS28 — £320,000 • 3 bed • 1 bath • 781 ft²
 3 bedroom semi-detached house for sale in Sycamore Walk, Farsley, Pudsey, West Yorkshire, LS28 — £320,000 • 3 bed • 1 bath • 781 ft² 3 bedroom semi-detached house for sale in Back Lane, Farsley, Pudsey, West Yorkshire, LS28 — £335,000 • 3 bed • 1 bath • 952 ft²
 3 bedroom semi-detached house for sale in Back Lane, Farsley, Pudsey, West Yorkshire, LS28 — £335,000 • 3 bed • 1 bath • 952 ft² 3 bedroom semi-detached house for sale in Merton Gardens, Farsley, Pudsey, West Yorkshire, LS28 — £285,000 • 3 bed • 1 bath • 847 ft²
 3 bedroom semi-detached house for sale in Merton Gardens, Farsley, Pudsey, West Yorkshire, LS28 — £285,000 • 3 bed • 1 bath • 847 ft² 3 bedroom semi-detached house for sale in Westway, Farsley, Pudsey, West Yorkshire, LS28 — £270,000 • 3 bed • 1 bath • 726 ft²
 3 bedroom semi-detached house for sale in Westway, Farsley, Pudsey, West Yorkshire, LS28 — £270,000 • 3 bed • 1 bath • 726 ft² 2 bedroom semi-detached house for sale in Westway, Farsley, Pudsey, West Yorkshire, LS28 — £250,000 • 2 bed • 1 bath • 846 ft²
 2 bedroom semi-detached house for sale in Westway, Farsley, Pudsey, West Yorkshire, LS28 — £250,000 • 2 bed • 1 bath • 846 ft² 3 bedroom semi-detached house for sale in Farfield Drive, Farsley, Pudsey, LS28 — £315,000 • 3 bed • 1 bath • 1191 ft²
 3 bedroom semi-detached house for sale in Farfield Drive, Farsley, Pudsey, LS28 — £315,000 • 3 bed • 1 bath • 1191 ft²










































































