Spacious conservatory, large driveway and low-maintenance garden in Hindley cul-de-sac.
Quiet cul-de-sac location with modern detached two-storey house
Detached garage plus driveway for up to four cars
Refitted kitchen/diner with built-in appliances and granite worktops
Large conservatory and low-maintenance garden ideal for entertaining
New shower room installed in April; newly renovated throughout
High flood risk — check insurance and mitigation requirements
Only one bathroom serving three bedrooms may limit larger families
Fast broadband and excellent mobile signal; affordable council tax
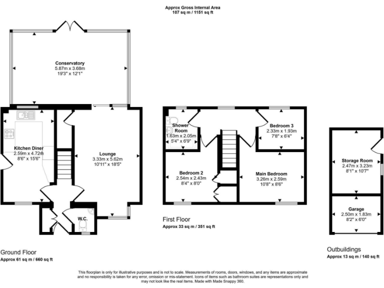
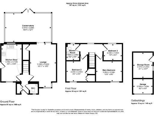
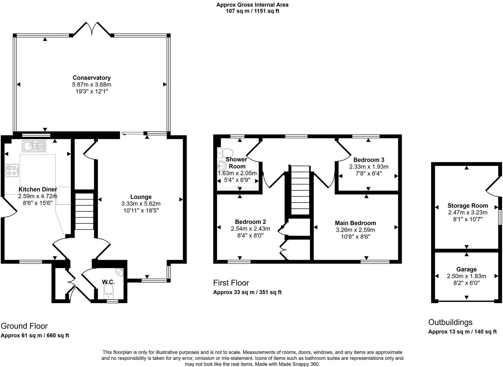
Nestled at the end of a quiet cul-de-sac in Hindley, this three-bedroom detached house offers comfortable, modern living across two storeys. It has been newly renovated with a contemporary kitchen/diner featuring built-in appliances and granite worktops, plus a large lounge with bay windows and a generous conservatory that opens onto a low-maintenance garden.
Practical benefits include a detached garage and a four-car driveway, mains gas central heating, double glazing and a recent shower room fitted in April. The property sits on a decent plot within a very affluent area classification and benefits from fast broadband and excellent mobile signal—suitable for working-from-home families.
Buyers should note some material considerations: the property lies in a high flood-risk area, which may affect insurance costs and future resilience planning. There is only one bathroom for three bedrooms, which could be a constraint for larger families. One nearby secondary school has an “Inadequate” Ofsted rating; however, two primary schools close by are rated Good and one alternative provision is Outstanding.
Overall this ready-to-move-in detached house is aimed at buyers seeking low-maintenance, contemporary living with strong parking and outdoor space. It suits families who prioritise layout, a garden and off-street parking, but who will want to review flood mitigation and bathroom arrangements.
3 bedroom detached house for sale in Corsey Road, Hindley, Wigan, WN2 — £240,000 • 3 bed • 1 bath • 774 ft²
3 bedroom detached house for sale in Blackberry Drive, Hindley, WN2 — £270,000 • 3 bed • 2 bath • 850 ft²
3 bedroom detached house for sale in Fenton Way, Hindley, WN2 — £280,000 • 3 bed • 3 bath • 1246 ft²
3 bedroom detached house for sale in Heathlea, Hindley Green, Wigan, WN2 4TZ, WN2 — £259,000 • 3 bed • 2 bath • 841 ft²
3 bedroom semi-detached house for sale in Dovenby Fold, Ince, Wigan, WN2 — £190,000 • 3 bed • 1 bath • 708 ft²
4 bedroom detached house for sale in Charlesworth Avenue, Hindley, WN2 — £400,000 • 4 bed • 2 bath • 1462 ft²


























































































