Generous two-bed with park views and residents’ leisure facilities in central W8.
Approximately 1,708 sq ft over two floors with high ceilings and plentiful light
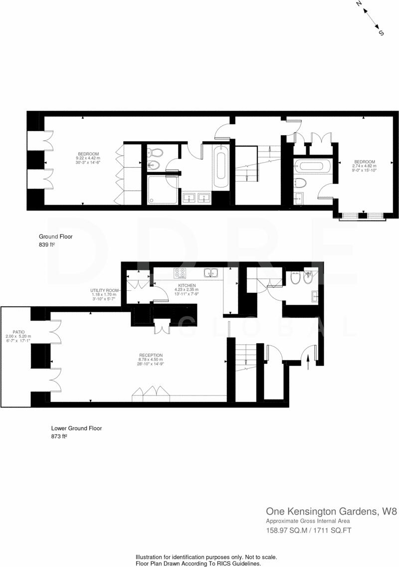
A rare two-bedroom apartment in prime Kensington, this generously proportioned residence spans approximately 1,708 sq ft over two floors and emphasises light, volume and high-quality finishes. The layout includes a large reception/dining area with high ceilings and floor-to-ceiling glazing, two bedroom suites with built-in storage and marble bathrooms, plus utility and guest WC. Shared facilities include concierge, residents’ gym, spa and indoor pool; secure underground garage available by separate negotiation.
The property sits directly opposite Kensington Gardens, placing green space, museums, high-end shops and top independent and state schools within easy reach. The long lease (985 years) and share-of-freehold tenure are strong ownership features in central London. Modern comforts reported include double glazing, gas boiler central heating and fast broadband; the apartment’s finish is contemporary, with oak and marble accents throughout.
Important practical points are presented plainly: the annual service charge is extremely high (reported at £32,000) and the location records very high local crime levels — both factors that affect running costs and insurance. The building fabric dates from the early 20th century (solid brick construction, assumed no cavity insulation), which may prompt further checks on thermal performance and maintenance history.
This home will suit buyers seeking a secure, centrally located pied-à-terre or a high-end primary residence with exceptional proximity to Hyde Park and London’s cultural amenities. Investors should factor the elevated service charge and local crime figures into yield calculations; families will value the strong nearby school options and immediate access to green space.
2 bedroom flat for sale in One Kensington Gardens, Kensington Road, Kensington, London, W8 — £2,750,000 • 2 bed • 2 bath • 1485 ft²
2 bedroom flat for sale in One Kensington Gardens, Kensington Road, Kensington, London, W8 — £3,950,000 • 2 bed • 2 bath • 1658 ft²
2 bedroom flat for sale in One Kensington Gardens, Victoria Road, Kensington, London, W8 — £5,300,000 • 2 bed • 2 bath • 1602 ft²
2 bedroom apartment for sale in De Vere Gardens, Kensington, London, W8 — £6,550,000 • 2 bed • 2 bath • 1840 ft²
2 bedroom apartment for sale in One Kensington Gardens, Kensington, London, W8 — £5,750,000 • 2 bed • 2 bath • 2212 ft²
1 bedroom flat for sale in One Kensington Gardens, Kensington Road, Kensington, London, W8 — £3,950,000 • 1 bed • 1 bath • 1485 ft²






















































































































