**Standout Features:**
- Price Range: £400,000 - £415,000
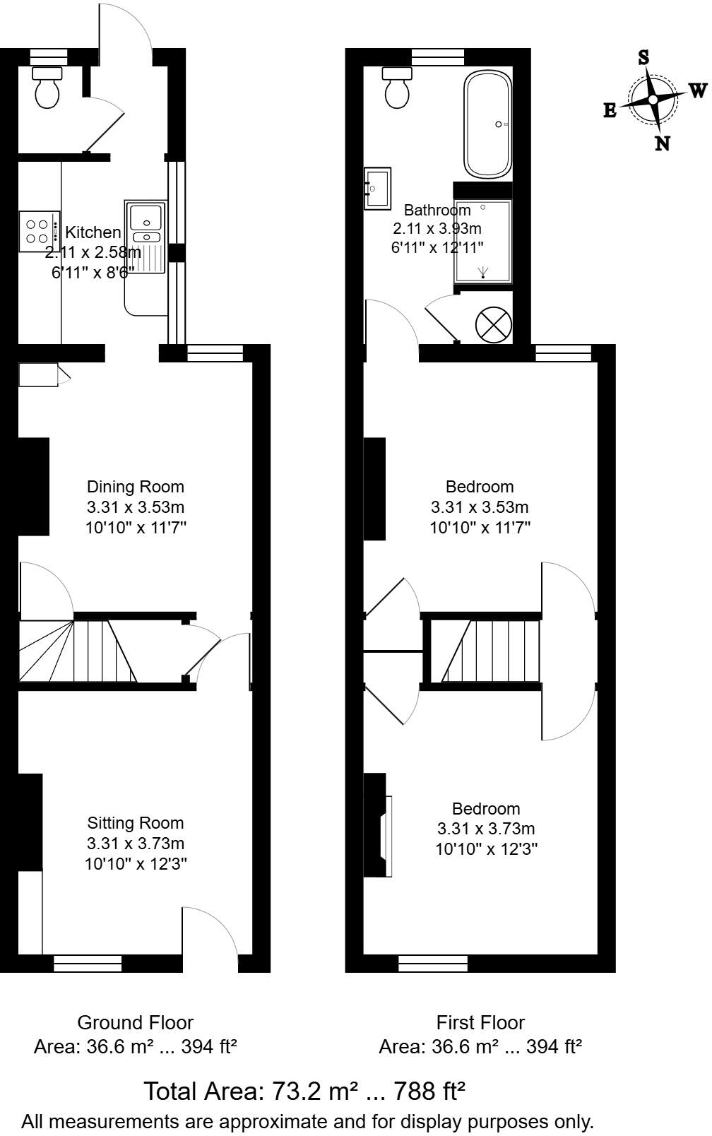
- Recently renovated terraced house with modern amenities
- New roof and electrical updates with a 25-year guarantee
- Contemporary kitchen with integrated appliances and stylish fixtures
- Two spacious double bedrooms featuring period fireplaces
- South-facing, low-maintenance garden ideal for entertaining
- Chain-free sale
- Located in the highly sought-after St Peter's area, within walking distance of town and rail links
**Summary:**
Discover this beautifully presented Victorian terraced home nestled in the desirable St Peters area of Tunbridge Wells. Recently updated, this property features a contemporary kitchen and a luxurious family bathroom, both designed for modern living. The bright, comfortable living room and dining area are perfect for gatherings, while the south-facing garden provides a lovely outdoor space for relaxation and entertaining amidst minimal maintenance.
With nearby amenities, excellent schools, and a short walk to the town center and mainline station—offering swift access to London—this home is perfect for families and professionals alike. The property is chain-free and ready for you to move in, making this an exceptional opportunity for those seeking comfort and convenience. Don’t miss out on owning this delightful residence in a thriving community; schedule your visit today!
2 bedroom terraced house for sale in Cromwell Road, Tunbridge Wells, Kent, TN2 — £350,000 • 2 bed • 1 bath • 641 ft²
2 bedroom end of terrace house for sale in Cromwell Road, Tunbridge Wells, Kent, TN2 — £335,000 • 2 bed • 1 bath • 526 ft²
2 bedroom house for sale in Cromwell Road, Tunbridge Wells, Kent , TN2 — £400,000 • 2 bed • 1 bath • 600 ft²
3 bedroom end of terrace house for sale in Queens Road, Tunbridge Wells, TN4 — £575,000 • 3 bed • 1 bath • 1160 ft²
2 bedroom terraced house for sale in Nelson Road, Tunbridge Wells, Kent, TN2 — £540,000 • 2 bed • 1 bath • 953 ft²
2 bedroom terraced house for sale in Park Street, Tunbridge Wells (no chain), TN2 — £375,000 • 2 bed • 1 bath • 601 ft²


















































