Bright two-bedroom flat with study, steps from Streatham Common and stations.
Private ground-floor entrance for direct access
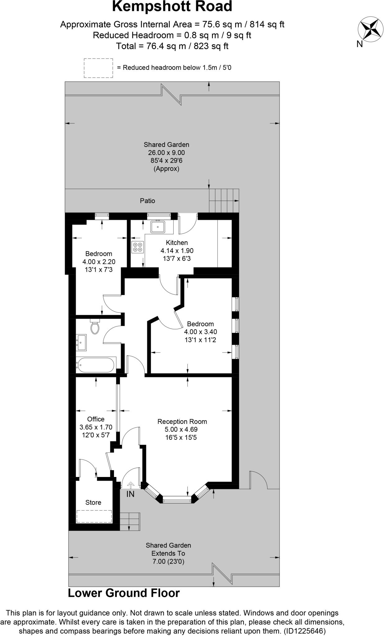
A well-presented two-bedroom flat with its own private entrance and direct access to a mature shared garden, ideal for a first-time buyer seeking outdoor space in Streatham. The layout includes two double bedrooms, a separate kitchen, a bright reception room with a bay window and a handy study with extra storage — useful as a home office or cloakroom.
Convenience is a strong selling point: Streatham Common and Streatham stations are within easy walking distance, with frequent rail and bus links into central London. Local amenities are close by, including a Sainsbury’s and a wide range of cafés, shops and pubs, making everyday living straightforward.
Practical facts to note: the building dates from the mid-20th century (1950–1966), heating is warm-air on mains gas and the cavity walls are assumed to have no insulation — there may be scope to improve thermal performance. Tenure is share of freehold and council tax is described as affordable.
This property suits buyers wanting a ready-to-move-in home with immediate transport and amenity access, plus potential to modernise heating and insulation over time to reduce bills and increase comfort.
2 bedroom apartment for sale in Greyhound Lane, Streatham, SW16 — £475,000 • 2 bed • 1 bath • 557 ft²
2 bedroom apartment for sale in Leigham Court Road, London, SW16 — £475,000 • 2 bed • 1 bath • 754 ft²
2 bedroom apartment for sale in Edgington Road, London, SW16 — £400,000 • 2 bed • 1 bath • 521 ft²
2 bedroom flat for sale in Ellison Road, Streatham, London, SW16 — £550,000 • 2 bed • 1 bath • 791 ft²
2 bedroom flat for sale in Natal Road, Streatham, London, SW16 — £450,000 • 2 bed • 1 bath • 633 ft²
2 bedroom flat for sale in Valley Road, Streatham, London, SW16 — £300,000 • 2 bed • 1 bath • 620 ft²










































