Turn-key, income-producing city flat ideal for investors seeking central rental demand.
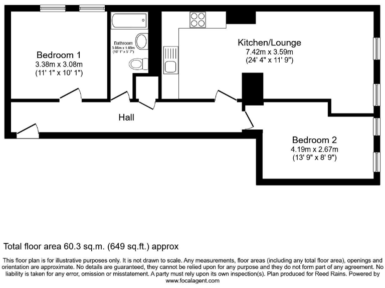
Ground-floor two-bedroom apartment, 649 sqft compact efficient layout
New conversion (2023) — never occupied, modern fixtures throughout
Chain-free sale with vacant possession; currently rented at £1,050pcm
Leasehold tenure with £200 ground rent payable
EPC D — lower energy rating than modern gas-heated homes
Electric room heating throughout; higher running costs likely
Very slow broadband speeds in the area may affect tenants/users
Located in a student-focused area with very high local crime levels
This ground-floor, two-bedroom apartment sits within a recently completed conversion of a Victorian courthouse, finished in 2023 and never previously occupied. At 649 sq ft the layout is compact and efficient with an open-plan kitchen/living area, two well-proportioned bedrooms and one bathroom — designed for city living and rental demand.
The property is offered chain-free with vacant possession and currently produces rental income of £1,050pcm, making it immediately income-generating for an investor. Built features include high original windows and retained character details externally, paired with contemporary fittings internally and electric heating throughout.
Buyers should note this is leasehold with a ground rent of £200 and newly converted construction standards; the EPC is rated D. Broadband speeds in the area are very slow and heating relies on electric room heaters, which may affect running costs. The property is in a cosmopolitan, student-dominated neighbourhood with very high local crime levels — factors to weigh for both letting and owner-occupation.
Overall, the apartment suits investors targeting central Sheffield student or city-centre lets who want a low-entry, turn-key asset with immediate rental income. It also offers potential for a short-term owner-occupier seeking a central base, provided they accept electric heating and the local area characteristics.
3 bedroom apartment for sale in Bank Street, Sheffield, South Yorkshire, S1 — £260,000 • 3 bed • 2 bath • 908 ft²
3 bedroom apartment for sale in Bank Street, Sheffield, South Yorkshire, S1 — £260,000 • 3 bed • 2 bath • 979 ft²
2 bedroom apartment for sale in North Bank, Sheffield, South Yorkshire, S3 — £105,000 • 2 bed • 1 bath • 556 ft²
2 bedroom flat for sale in Holly House, Leopold Street, City Centre, Sheffield, S1 — £190,000 • 2 bed • 2 bath • 871 ft²
1 bedroom flat for sale in Bank Street, Sheffield, S1 — £170,000 • 1 bed • 1 bath • 538 ft²
2 bedroom flat for sale in Wharncliffe House, 44 Bank Street, City Centre, Sheffield, S1 — £85,000 • 2 bed • 1 bath • 537 ft²






































