**Standout Features:**
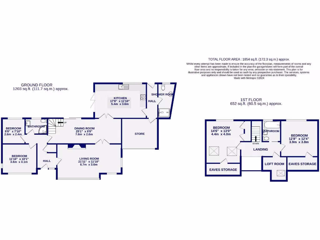
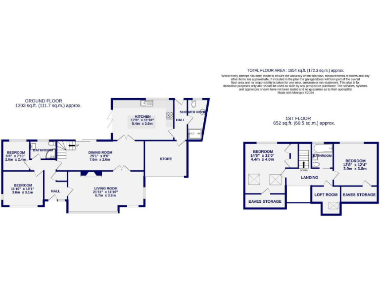
- Recently renovated and extended four-bedroom detached bungalow
- Spacious open-plan kitchen diner with integrated appliances and a stylish modern design
- Large, beautifully landscaped gardens with privacy from tall hedge boundaries
- Ample off-street parking with a driveway for multiple vehicles
- Located in the desirable Appletree Village, near York city center
- Offered chain-free
**Summary:**
Discover this stunning four-bedroom detached bungalow in the highly sought-after Appletree Village, just a short drive east of York city center. Recently renovated with a focus on modern design, this home features an impressive open-plan kitchen diner with a skylight, a charming living room with French doors leading to the large landscaped gardens, and a cozy fireplace in the principal reception room. The versatile layout is perfect for family life, offering two bedrooms on the ground floor and two additional bedrooms upstairs with a shared modern bathroom featuring a Jacuzzi bath.
Set within a spacious plot, this bungalow boasts generous gardens enveloped in greenery, providing both privacy and a serene outdoor retreat. With ample off-street parking and a convenient storeroom, this property offers practicality alongside its appeal. Although located in a neighborhood with above-average crime rates, the overall community is affluent and boasts excellent schools, making it a fantastic investment for families or first-time buyers. This property is offered with no onward chain, making early viewings highly recommended for those looking to secure a family home in one of York’s most popular areas.
4 bedroom detached bungalow for sale in Braeburn, 61 Meadlands, York, YO31 — £525,000 • 4 bed • 2 bath • 1980 ft²
4 bedroom detached house for sale in Meadlands, York, North Yorkshire, YO31 — £625,000 • 4 bed • 3 bath • 1851 ft²
3 bedroom detached bungalow for sale in Sherwood Grove, Acomb, York, YO26 5RD, YO26 — £500,000 • 3 bed • 1 bath • 1227 ft²
3 bedroom detached bungalow for sale in Stockton Lane, Heworth, York, YO31 1JJ, YO31 — £450,000 • 3 bed • 2 bath • 1421 ft²
4 bedroom semi-detached house for sale in Main Street, Askham Bryan, York, YO23 3QU, YO23 — £450,000 • 4 bed • 2 bath • 1271 ft²
4 bedroom bungalow for sale in Stockholm Close, York, YO10 — £650,000 • 4 bed • 2 bath • 1624 ft²


























































































