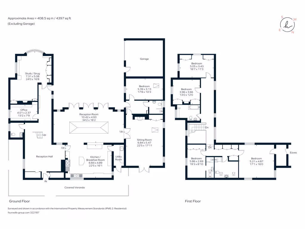
**Standout Features:**
- Unique Victorian coach house conversion
- 5 spacious bedrooms and 4 stylish bath/shower rooms
- 4 elegant reception rooms with distinctive architecture
- Expansive kitchen/breakfast area with Aga and central island
- Beautifully landscaped gardens set on 1.36 acres
- Private outdoor swimming pool and hard tennis court
- Ample parking with a double garage
- Independent entrance ideal for an annex setup
**Summary:**
Immerse yourself in the charm of this exceptional 5-bedroom Victorian coach house set in a tranquil rural setting in Surrey. Boasting 4 bath/shower rooms and 4 distinct reception areas, the property presents a perfect blend of elegance and informality, ideal for family living. Enjoy preparing meals in the expansive kitchen/breakfast room, complete with an Aga and picturesque family dining space featuring a stunning glazed ceiling that floods the area with natural light.
Outside, the expertly landscaped gardens stretch across 1.36 acres, offering a peaceful retreat with a private swimming pool and tennis court—perfect for outdoor entertaining or family activities. The home also offers practical features, such as a double garage and a unique ground-floor bedroom with an independent entrance, which could work wonderfully as an annex.
Situated just 2 miles from the picturesque village of Chiddingfold, you’ll have easy access to shops, schools, and countryside adventures. While the property is well-appointed, it does exhibit some maintenance needs due to age, requiring considerate rejuvenation to enhance its original character. With potential for personal touches and renovations, don’t miss this opportunity to own a piece of countryside elegance that promises a comfortable, secure lifestyle for families or retirees alike. Act fast; properties like this are rare finds!
6 bedroom detached house for sale in Standon Lane, Dorking, Surrey, RH5 — £2,995,000 • 6 bed • 5 bath • 7275 ft²
6 bedroom detached house for sale in Coldharbour, Dorking, Surrey, RH5 — £3,950,000 • 6 bed • 3 bath • 4359 ft²
5 bedroom detached house for sale in Jumps Road, Churt, Farnham, Surrey, GU10 — £3,300,000 • 5 bed • 4 bath • 4001 ft²
5 bedroom detached house for sale in Jumps Road, Churt, Farnham, GU10 — £3,500,000 • 5 bed • 4 bath • 5984 ft²
4 bedroom detached house for sale in Headley Hill Road, Headley, GU35 — £1,999,950 • 4 bed • 3 bath • 2813 ft²
8 bedroom detached house for sale in Dippenhall, Farnham, GU10 — £2,350,000 • 8 bed • 6 bath • 8204 ft²






















































































