Brand-new starter option with EV charging, garden and driveway parking.
50% shared ownership - leasehold; details and charges pending
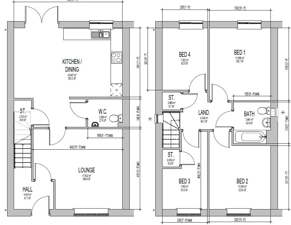
A brand-new, four-bedroom semi-detached home offered as a 50% shared ownership presents an accessible route onto the property ladder. The ground floor offers a generous lounge, open-plan kitchen/diner with patio doors to the rear garden, and a downstairs WC—ideal for families or buyers needing flexible living space.
Outside, the property benefits from off-street driveway parking with an electric vehicle charging point, a fenced rear garden with patio area, and a neat front lawn. New-build specification means modern fixtures, neutral decor and low immediate maintenance compared with older stock.
Buyers should note this is a leasehold shared ownership sale. Lease length and specific service charges are still being finalised and additional fees (such as leasehold packs) may apply. Broadband speeds in the area are reported as slow, and some purchasers may need to check connectivity options.
Overall this house suits first-time buyers or those seeking an affordable family-sized new-build with parking, EV charging and garden space. Viewing is advised to assess layout and to discuss the shared ownership terms before committing.
3 bedroom town house for sale in Lewsley Drive, Somercotes, Alfreton, DE55 — £69,000 • 3 bed • 1 bath
2 bedroom semi-detached bungalow for sale in Lewsley Drive, Somercotes, Alfreton, DE55 — £102,500 • 2 bed • 2 bath
3 bedroom terraced house for sale in Lewsley Drive, Somercotes, Alfreton, DE55 — £115,000 • 3 bed • 1 bath
2 bedroom terraced house for sale in Woods Drive, Swanwick, ALFRETON, DE55 — £94,500 • 2 bed • 1 bath • 668 ft²
2 bedroom semi-detached house for sale in Damstead Park Avenue, Alfreton, DE55 — £112,500 • 2 bed • 1 bath • 708 ft²
3 bedroom semi-detached house for sale in Meadow Lane, Shirebrook, NG20 8FT, NG20 — £58,500 • 3 bed • 2 bath














































































