Spacious character house near Portobello, ideal for growing families.
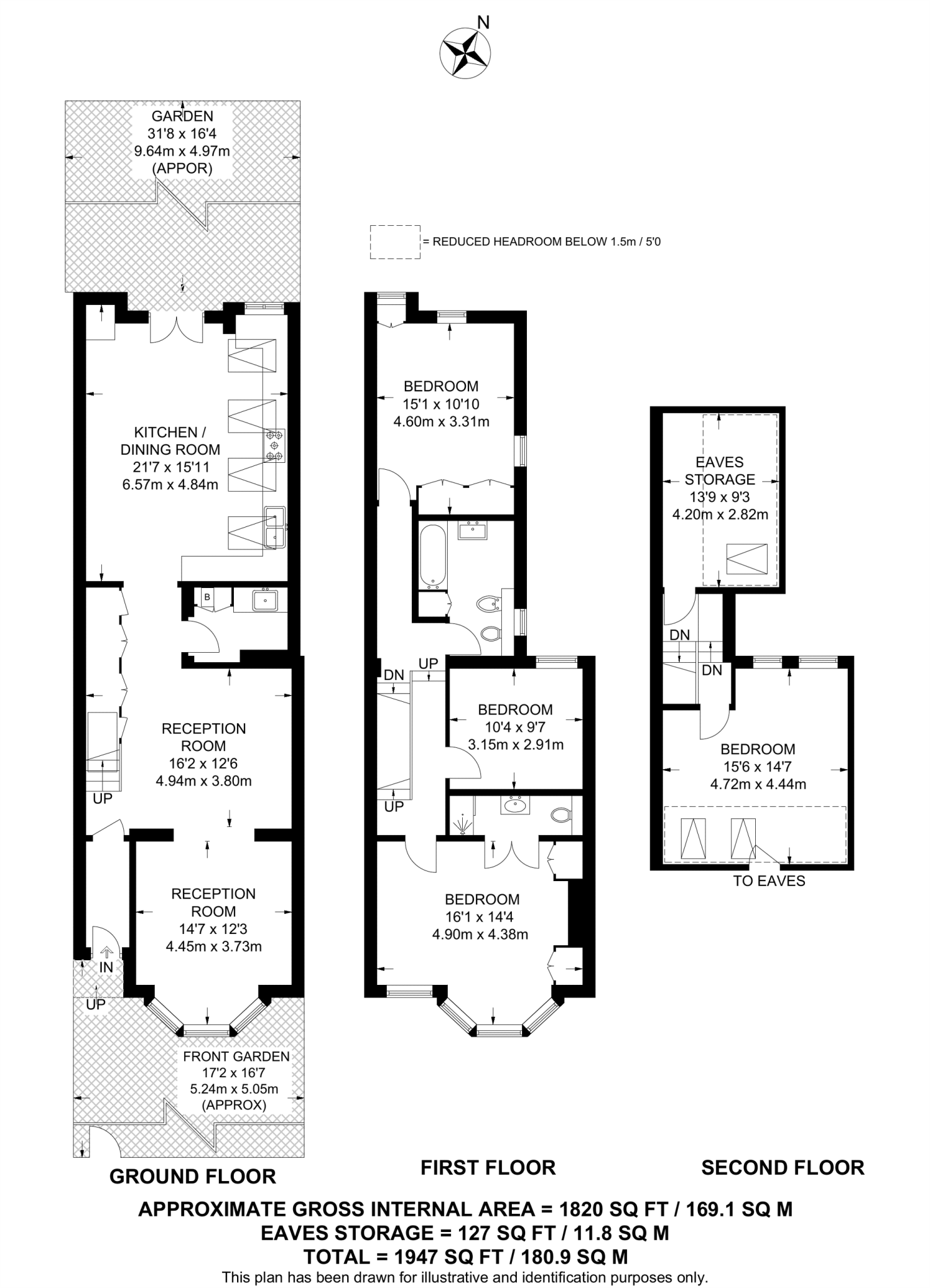
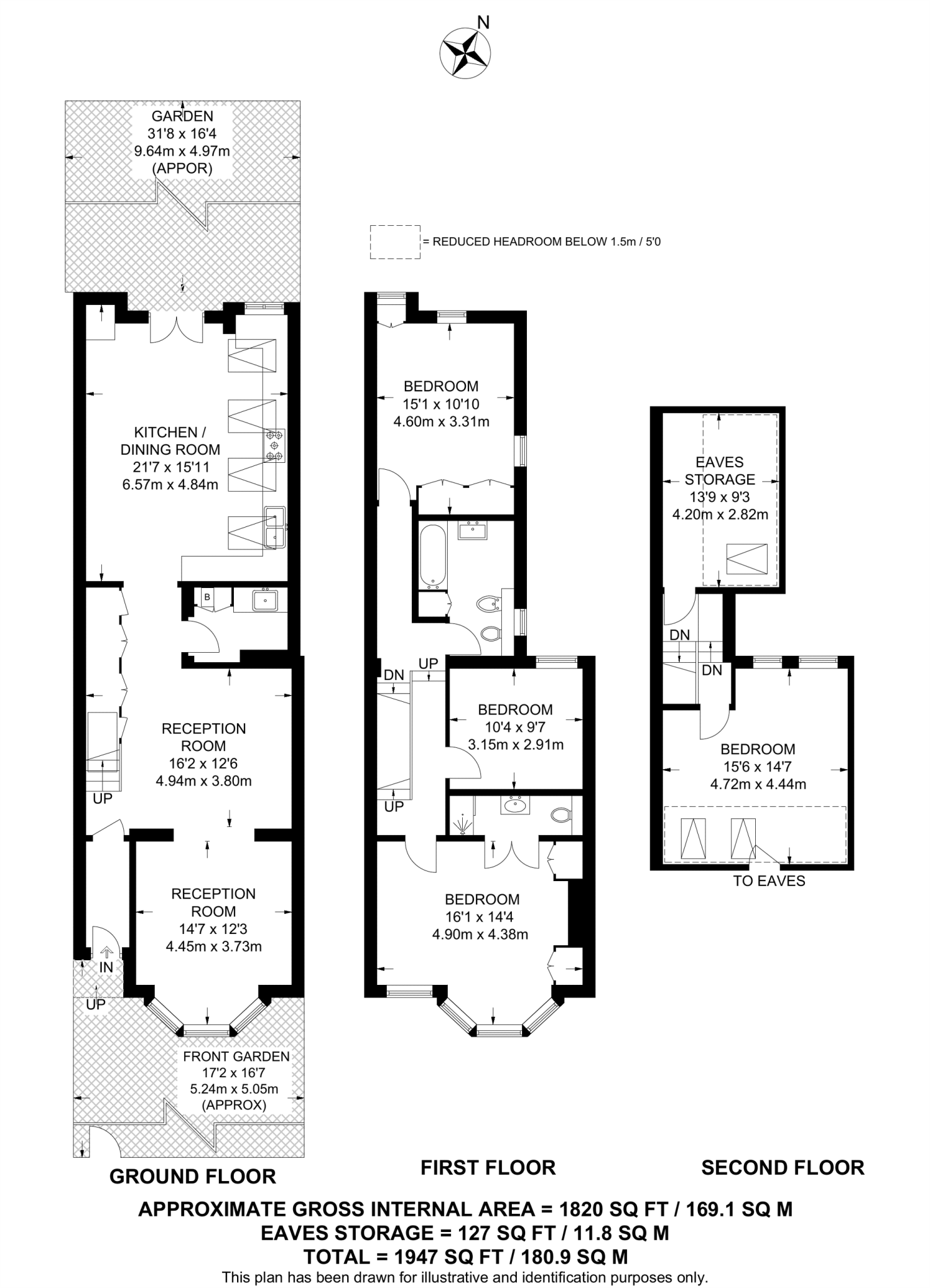
Bay-front double reception with high ceilings and original period details
Large eat-in contemporary kitchen with direct garden/patio access
Four generously sized double bedrooms across multiple floors
Two stylish bathrooms plus an additional separate WC
Freehold, c.1947 sq ft, Victorian mid-terrace (1900–1929)
Small plot with secluded patio rather than a large rear garden
Solid brick walls assumed uninsulated; double glazing install date unknown
Area has above-average crime; consider security and location implications
Set over multiple floors, this generous four-bedroom mid-terrace combines classic Victorian character with contemporary living spaces. A wide bay-front double reception showcases high ceilings and original features, while a large eat-in kitchen opens directly to a secluded patio — an attractive layout for families who value formal and casual living. Two bathrooms plus a separate WC serve four double bedrooms comfortably.
The house sits on a quiet, tree-lined street close to Portobello Road, Holland Park and Ladbroke Grove Station, making daily commutes and local amenities convenient. Several well-rated primary and secondary schools are within easy reach, which will appeal to family buyers. The property is freehold with about 1,947 sq ft of accommodation and period construction dating from 1900–1929.
Notable practical points: walls are solid brick with no known insulation (assumed), and double glazing is present but install date is unknown — both relevant for running costs and any planned improvements. The plot is small and the secluded patio offers low-maintenance outdoor space rather than a large garden. Crime levels in the immediate area are above average; buyers should factor this into location considerations.
Overall this home offers substantial living space, strong period appeal and good local amenities. It will suit buyers seeking a family property with character and potential for selective modernisation, particularly those prioritising location and internal space over a large garden.
4 bedroom terraced house for sale in Highlever Road, North Kensington, London, W10 — £1,995,000 • 4 bed • 3 bath • 1964 ft²
3 bedroom terraced house for sale in Highlever Road, London, W10 — £1,495,000 • 3 bed • 2 bath • 1344 ft²
4 bedroom terraced house for sale in Highlever Road, London, W10 — £1,995,000 • 4 bed • 3 bath • 2000 ft²
5 bedroom house for sale in St. Lawrence Terrace, North Kensington, W10 — £4,350,000 • 5 bed • 4 bath • 3000 ft²
5 bedroom house for sale in St. Quintin Gardens, North Kensington, W10 — £4,000,000 • 5 bed • 3 bath • 3289 ft²
4 bedroom house for sale in North Kensington, W10 — £2,575,000 • 4 bed • 3 bath • 1711 ft²














































































































































































































