Elegant period apartment with communal terrace in a prime High Street location.
Prime Kensington High Street location, minutes from shops, parks and tube
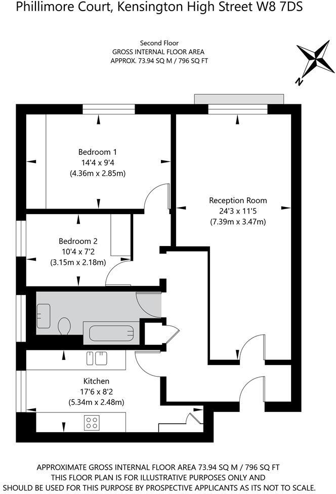
Spacious 796 sq ft with high ceilings and period sash windows
Lift access, day porter and private communal terrace garden
Share of freehold; low ground rent (£100 pa)
Service charge £5,844 pa — above-average running costs
Council tax described as expensive — factor into affordability
Area records above-average crime compared with national average
No flooding risk; excellent mobile signal and fast broadband
Set within a distinguished Kensington mansion block, this 2-bedroom apartment offers classic period proportions with modern finishes across 796 sq ft. High ceilings and sash windows create bright, airy rooms; the reception and separate kitchen suit entertaining or comfortable everyday living. A day porter, lift access and a private communal terrace add convenience and a quiet outside space in the heart of the High Street.
The flat is offered as a share of freehold, with a low ground rent of £100 pa. The current service charge of £5,844 pa should be noted by buyers budgeting for communal maintenance and building services; council tax is also described as expensive. The property sits on Kensington High Street so you benefit from immediate access to shops, restaurants, transport links and green space at Holland Park and Kensington Gardens.
This apartment will suit a buyer seeking a well‑located London base or a buy-to-let purchase in a highly affluent postcode. The layout and size are suited to couples, small families or professionals looking for elegant, low-maintenance city living. Be aware that the area records above-average crime levels compared with the national average; buyers wanting a quieter street experience should view in person to assess immediate surroundings.
Overall this is a characterful, centrally positioned Kensington home combining mansion‑block charm with practical amenities. It represents a straightforward purchase for those prioritising location, period features and communal services, provided the service charge and local environment align with the buyer’s needs.
2 bedroom apartment for sale in Scarsdale Place, Kensington, London, W8 — £1,095,000 • 2 bed • 2 bath • 823 ft²
2 bedroom flat for sale in Kensington Court, London, W8 — £925,000 • 2 bed • 1 bath • 638 ft²
2 bedroom apartment for sale in Palace Place Mansions, 36 Kensington Court, London, W8 — £1,875,000 • 2 bed • 2 bath • 1116 ft²
1 bedroom flat for sale in Kensington High Street, Kensington, W8 — £900,000 • 1 bed • 1 bath • 764 ft²
2 bedroom apartment for sale in Kensington Court, Kensington, W8 — £1,499,950 • 2 bed • 2 bath • 1017 ft²
2 bedroom flat for sale in 23-25 Kensington High Street, London, W8 — £775,000 • 2 bed • 2 bath • 718 ft²


















































































































































































