Contemporary, roomy flat moments from Bond Street and Hyde Park.
Spacious one-bedroom — approx. 634 sq ft, generous proportions
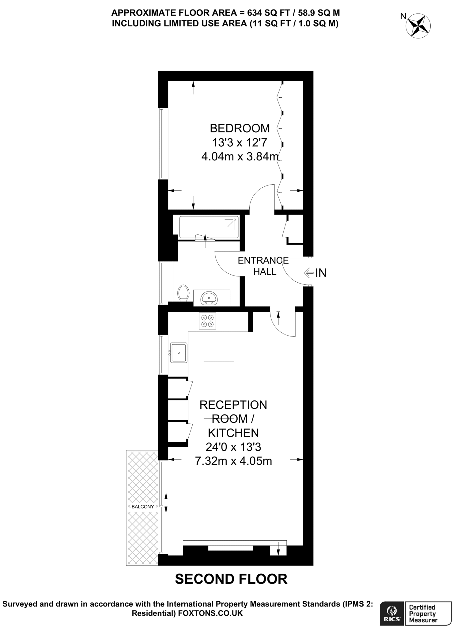
This one-bedroom apartment sits on the second floor of a portered block facing Portman Square, offering a compact, contemporary home or rental in a highly desirable Marylebone address. The open-plan living and dining area is bright and well laid-out, with a private balcony and a stylish walk-in rain shower in the bathroom. Bond Street and Oxford Street are moments away, with Hyde Park within easy walking distance.
Practical details include a long lease (approximately 125 years remaining), double glazing installed after 2002, lift access and a communal heating scheme. The apartment’s large overall size for a one-bed (approximately 634 sq ft) and high ceilings in the bedroom increase usable space and appeal to buyers seeking generous proportions in central London.
Buyers should note a few material considerations: the building was constructed in the late 1960s–1970s using system-built methods and is assumed to have little or no wall insulation, which could mean noise transfer and reduced thermal efficiency. The property is leasehold; any purchaser should review lease terms, service charges and building policies. Local recorded crime levels are very high for the area, which may affect some buyer preferences and lettability.
Overall this is a strong central-London proposition for an investor or buyer seeking a well-specified, roomy one-bedroom in a prestigious square — with realistic costs and retrofit work to consider if improved thermal performance or soundproofing is required.
1 bedroom apartment for sale in Portman Close, London, Greater London, W1H — £1,150,000 • 1 bed • 1 bath • 782 ft²
1 bedroom flat for sale in 15 Portman Square, Marylebone, London W1H — £1,095,000 • 1 bed • 1 bath • 663 ft²
1 bedroom apartment for sale in Portman Square, Marylebone, London, W1H — £1,095,000 • 1 bed • 1 bath • 665 ft²
1 bedroom flat for sale in Marylebone Square, Marylebone, London, W1U — £3,250,000 • 1 bed • 2 bath • 899 ft²
1 bedroom flat for sale in Molyneux Street, London, W1H — £925,000 • 1 bed • 1 bath • 793 ft²
1 bedroom flat for sale in Marylebone Square, W1, W1U — £3,250,000 • 1 bed • 1 bath • 899 ft²














































