Spacious open-plan family living within sought-after village and school catchments.
Extended, fully modernised three bedroom detached home
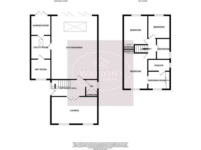
This recently renovated, extended detached house in Watnall delivers contemporary family living across three bedrooms and flexible living spaces. The open-plan dining kitchen/family room with high ceilings and skylight is the home's centrepiece, complemented by a garden room, lounge and useful utility for busy households. A primary suite includes a dressing area and en-suite; a downstairs shower room plus a separate WC adds practical flexibility for families and guests.
Outside offers generous off-street parking and a private rear garden suitable for summer entertaining and family play. The property sits in favoured local school catchments and a very low-crime, comfortable suburbia setting with easy access to local shops, pubs and countryside walks. Broadband is fast and there is no flood risk.
Practical notes: the house was built in the late 1970s/early 1980s and, while comprehensively modernised, retains a traditional layout in parts. Council tax is moderate; mobile signal is average. Overall size is described as average for a detached home, so movers wanting very large rooms should check room dimensions in person.
6 bedroom detached house for sale in Main Road, Watnall, Nottingham, NG16 — £750,000 • 6 bed • 3 bath • 1981 ft²
5 bedroom detached house for sale in Main Road, Watnall, Nottingham, NG16 — £600,000 • 5 bed • 3 bath • 2334 ft²
4 bedroom detached house for sale in Johnson Close, Nottingham, NG16 — £400,000 • 4 bed • 3 bath • 1538 ft²
4 bedroom semi-detached house for sale in Stannier Way, Watnall, Nottingham, Nottinghamshire, NG16 — £230,000 • 4 bed • 2 bath • 1304 ft²
4 bedroom detached house for sale in Fleming Close, Watnall, Nottinghamshire, NG16 1JY, NG16 — £375,000 • 4 bed • 1 bath • 1125 ft²
3 bedroom detached house for sale in Pilkington Road, Nottingham, NG3 — £400,000 • 3 bed • 2 bath • 1518 ft²














































































































































