Single‑storey living with garage, parking and low‑maintenance garden.
Detached two‑bedroom bungalow on a cul‑de‑sac corner plot
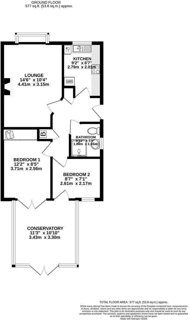
Set on a quiet cul‑de‑sac corner plot, this two‑bedroom detached bungalow offers single‑storey living close to Brimington village amenities and routes into Chesterfield and Staveley. The layout is concise and practical: a good‑sized living room with box bay window, a kitchen with integrated appliances, two bedrooms and a brick/uPVC conservatory that opens onto the rear garden.
Outside there is driveway parking, a detached single garage with power and light, and an enclosed east‑facing rear garden finished with a decked patio and decorative gravel for low‑maintenance enjoyment. The property is offered with no upward chain and benefits from gas central heating via a Worcester Greenstar boiler and uPVC double glazing.
This bungalow will suit downsizers or buyers seeking an easy‑to‑manage home on one level. The accommodation is modest at 577 sq ft, so it’s best for those prioritising convenience over expansive space. Note the EPC rating is D and the glazing dates from before 2002; prospective buyers may wish to factor energy improvement costs into their plans.
Overall the home presents a straightforward, well‑located opportunity: low maintenance outdoor space, off‑street parking and single‑storey living, with potential to update energy efficiency and personalise the interior to taste.
2 bedroom detached bungalow for sale in Woodleigh Close, Chesterfield, S40 — £250,000 • 2 bed • 1 bath • 968 ft²
2 bedroom semi-detached bungalow for sale in Ranmoor Close, Hasland, Chesterfield, S41 — £185,000 • 2 bed • 1 bath • 719 ft²
2 bedroom semi-detached bungalow for sale in Heath Avenue, Killamarsh, Sheffield, S21 — £195,000 • 2 bed • 1 bath • 598 ft²
2 bedroom bungalow for sale in Bernard Close, Brimington, Chesterfield, Derbyshire S43 — £150,000 • 2 bed • 1 bath • 699 ft²
2 bedroom bungalow for sale in The Fairways, Danesmoor, Chesterfield, Derbyshire, S45 — £230,000 • 2 bed • 1 bath • 729 ft²
2 bedroom semi-detached bungalow for sale in Heathfield Close, Wingerworth, Chesterfield, S42 — £180,000 • 2 bed • 1 bath • 764 ft²






























































