**Standout Features:**
- Newly built three-bedroom detached bungalow
- Luxurious high-quality fixtures and fittings
- Open-plan living, kitchen, and dining area with French doors to the garden
- En-suite master bedroom plus additional family bathroom
- Off-road parking, integral garage, and a generous garden
- Energy-efficient features including air source heat pump
- Located near picturesque Ullswater Lake and Pooley Bridge
- Quiet, community-focused village setting
**Potential Concerns:**
- Property currently under construction, visit by appointment only
- Limited broadband speeds in the area
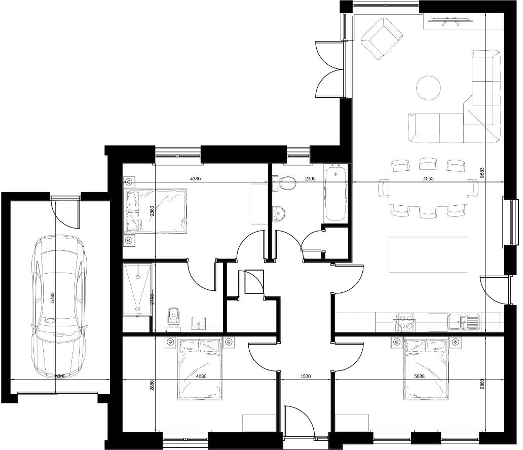
Step into your dream home at Plot 10, Sycamore Cottage—a stunning newly built three-bedroom detached bungalow located in the charming village of Tirril, on the doorstep of the breathtaking Lake District National Park. Boasting 1,205 sq.ft. of high-quality living space, this residence features an open-plan layout that seamlessly connects the living, kitchen, and dining areas. Enjoy the luxury of French doors leading to a beautifully landscaped garden where serene views of the fells await.
The modern design showcases impeccable craftsmanship, complete with stylish quartz countertops and luxurious fittings in both the kitchen and bathrooms. The master suite boasts a private ensuite, while ample off-road parking and an integral garage cater to both convenience and ease of living. Nestled in a peaceful, ageing rural neighborhood, this property offers potential for personalization and expansion, making it an excellent choice for family living or investment.
With only seven properties available in this exclusive development, act fast to secure your slice of idyllic village life. Get ready to enjoy the tranquility and community spirit this delightful area offers, all while being close to vital transport links and the stunning natural beauty of the Lake District.
3 bedroom detached bungalow for sale in Swallows Rise, Tirril, Penrith, CA10 — £495,000 • 3 bed • 2 bath • 1205 ft²
3 bedroom terraced house for sale in Swallows Rise, Tirril, Penrith, CA10 — £162,075 • 3 bed • 2 bath • 1000 ft²
3 bedroom semi-detached house for sale in Swallows Rise, Tirril, Penrith, CA10 — £350,000 • 3 bed • 2 bath • 1000 ft²
3 bedroom semi-detached house for sale in Swallows Rise, Tirril, Penrith, CA10 — £162,075 • 3 bed • 2 bath • 1000 ft²
5 bedroom detached house for sale in Swallows Rise, Sockbridge, Tirril, CA10 — £895,000 • 5 bed • 4 bath • 1777 ft²
5 bedroom detached house for sale in Swallows Rise, Sockbridge, Tirril, CA10 — £895,000 • 5 bed • 4 bath • 2291 ft²






















































































