BN3 5BB - 3 bedroom terraced house for sale in Byron Street, Hove, BN3

View on Property Piper

3 bedroom terraced house for sale in Byron Street, Hove, BN3

Summary - 74 Byron Street,HOVE,BN3 5BB BN3 5BB

3 bed 1 bath Terraced

**Standout Features:**
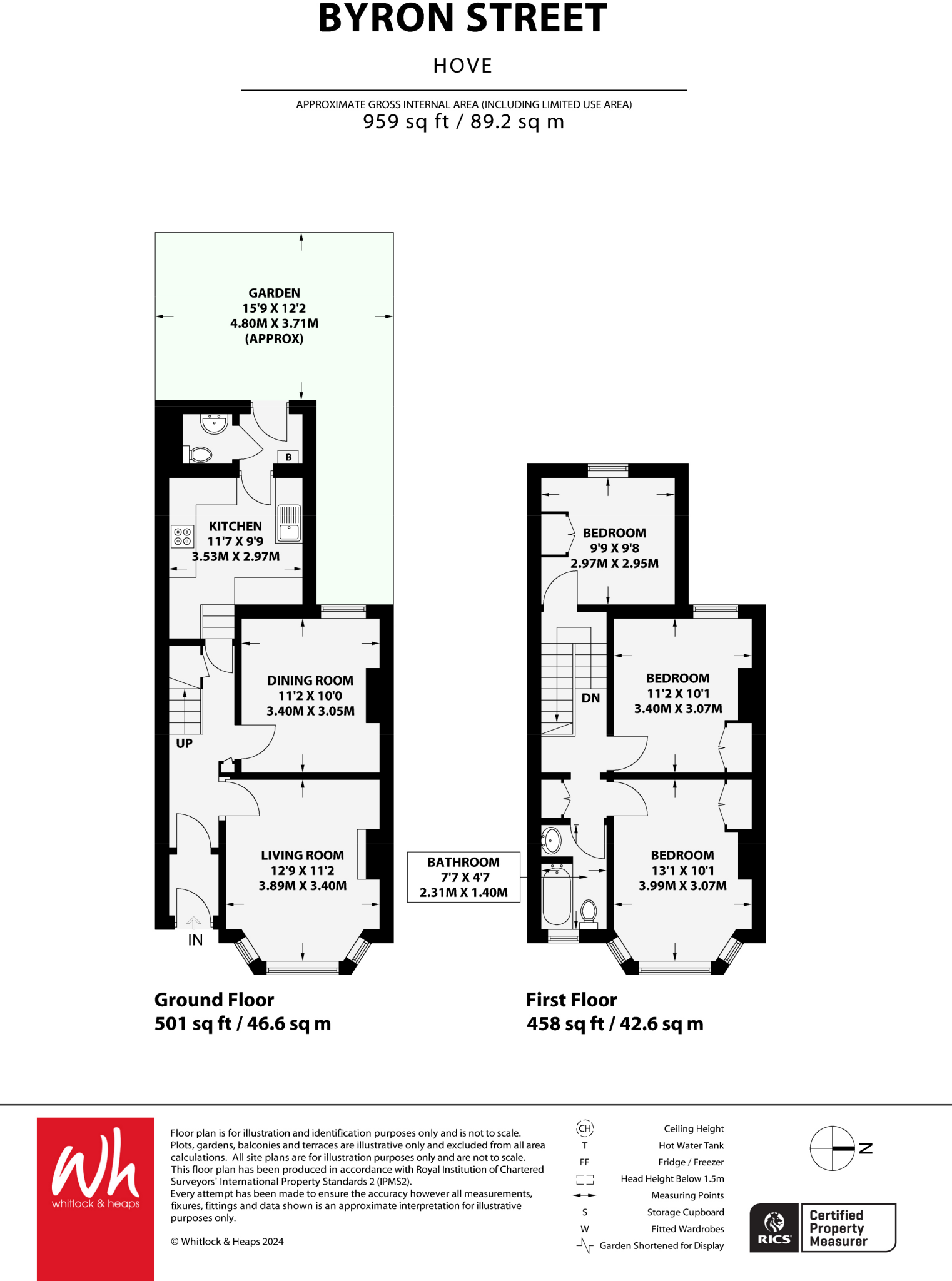
- Victorian terraced house with traditional bay windows
- Three bedrooms and one bathroom
- Dual reception rooms, including a living and dining area
- Cloakroom and kitchen leading to a south-facing garden
- Excellent mobile and broadband connectivity
- Chain-free sale, offering flexibility for buyers
- Located in the sought-after Poets Corner district

**Notable Concerns:**
- Property requires modernization throughout
- Garden space currently overgrown and in need of restoration
- Small overall size (755 sq ft) may not suit larger families
- Affordability may be a concern for some as the price is set at £500,000

**Summary:**
Embrace the potential of this charming Victorian terraced house nestled in the desirable Poets Corner district of Hove. With three bedrooms and one bathroom, this property offers a spacious atmosphere across its two reception rooms, ideal for family gatherings or entertaining friends. The traditional kitchen opens onto a south-facing garden, inviting you to reimagine outdoor living in a sunlit space, though it will require some TLC.

Perfect for first-time buyers or investors looking to renovate, the property enjoys low crime rates in an affluent area, ensuring a secure and comfortable environment. In addition to its proximity to Hove mainline station and the vibrant seafront, the home is conveniently situated near various amenities and reputable schools, making it an attractive choice for families. Take advantage of this chain-free offering and envision transforming it into your dream home—opportunities like this don’t last long!

Property Details

Brochure Descriptions

Image Descriptions

Floorplan Description

Rooms

Textual Property Features

Detected Visual Features

Nearby Schools

Nearest Bars And Restaurants

,,,,}

Nearest General Shops

,,}

Nearest Grocery shops

,,}

Nearest Supermarkets

,,}

Nearest Religious buildings

,,}

Nearest Medical buildings

,,,}

Nearest Leisure Facilities

,,,,}

Nearest Tourist attractions

,,}

Nearest Train stations

,,,,}

Nearest Bus stations and stops

,,,,}

Nearest Hotels

,,}

Tags

Local Market Stats

AirBnB Data

Similar Properties

Meta

High Res Images

Compatible Images

Low res Images

Thumbnails

Raw Images

High Res Floorplan Images

Compatible Floorplan Images

Low res Floorplan Images

FloorplanImages Thumbnail

Raw Floorplan Images